НОВО!!!БЕЗ КОМИСИОННА!!!LJcontract предлага двустаен апартамент в новострояща се луксозна жилищна сграда в центъра на София.
Отлична локация - бул.Сливница, ул.Братя Миладинови, на 4 мин. от метростаниция 'Лъвов мост'.
В близост се намират училища, детски градини , магазини и много други удобства. Модерна жилищна сграда с елегантна визия, предлагаща много уют и удобства.
В сградата ще бъдат монтиране два асансьора, жилищата ще бъдат издадени по стандарт БДС на шпаклова и замазка, с блиндирана входна врата, шесткамерна дограма с троен стъклопакет/Френски прозорци/, отопление на ТЕЦ, контролиран достъп и др.
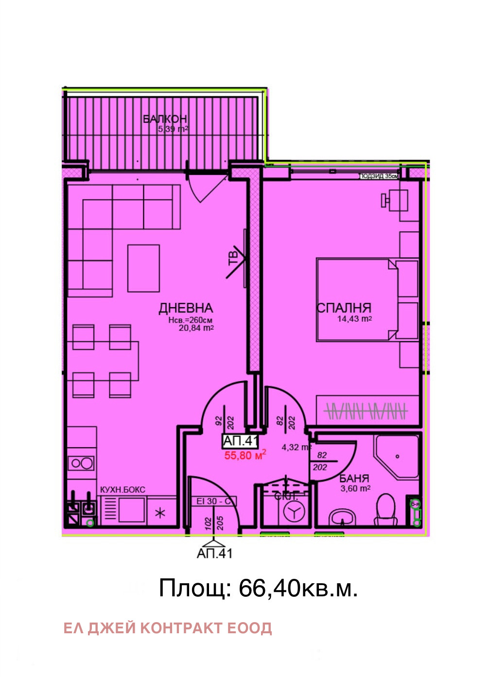
Жилището се намира на втори етаж с изложение Запад. Разпределението е входно антре, дневна с кухненски бокс и излаз на тераса, спалня, баня с тоалетна, складово помещение, тераса.
В допълнение може да закупите подземно паркомясто и/или гараж на цена от 20000евро!
Предлагат се и други едностайни,двустайни,тристайни и четиристайни апартаменти в сградата!
Разрешение за ползване- Септември на 2025г.
LJcontract предлага завършване на жилищата до ключ!!!
Свържете се с нашия екип за по-подробна информация!!!
LJcontract Real Estate е партньор на банки и кредитни институции, и оказва оказва пълно съдействие за получаване на кредити и оформяне на документи.
За огледи и консултации- Василев 0886657565







