Интересувате се от покупка на имот в ранен етап на строителство? Ние сме RE/MAX. Компания с повече от 50 години в сферата на недвижимите имоти в над 110 страни в целия свят. Направете покупкана на Вашия имот едно безпроблемно и положително преживяване!
Обектът е проектиран така, че да съчетава композиционна цялост, създавайки просторни отстояния между отделните обеми, за максимален комфорт на живеене. Проектът включва 2 структури от по 6 сгради на сключено застрояване и 2 свободно стоящи сгради, като ще са с общо подземно ниво.
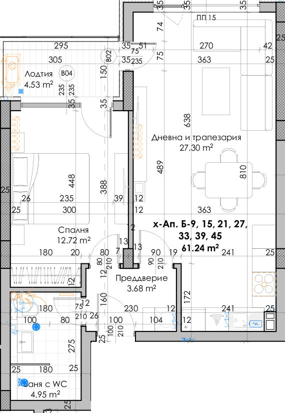
Апартаментът се намира на етаж 5
Изложение - Север
ЗАСТРОЕНА ПЛОЩ - 61,24 кв.м
ОБЩИ ЧАСТИ - 12,38 кв.м
изба 60 - 1,95 кв.м
ОБЩА ЗАСТРОЕНА ПЛОЩ 75,58 кв.м
Комплексът е разположен в непосредствена близост до кръстовището между бул. Александър Стамболийски и Димитър Талев
Степента на завършеност към момента е на груб строеж пред Акт 14, като изпълнението на отделните секции се извършва поетапно.







