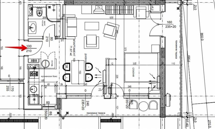
Представяме двустаен апартамент 'до ключ', с обща площ 86.45 кв.м, за продажба в Черноморец.
Имотът се намира в затворен комплекс с басейн и контролиран достъп.
Комплексът е разположен на 200 метра от търговската зона на града и на 450 метра до плажа на Еко Къмпинг Черноморец.
Имотът е светъл и просторен, намира се на първи етаж и има обширна тераса от 15.81 кв.м, с изглед към басейна.
За комплекса
Комплексът се състои от две сгради, разположени в общ охраняем двор, 3 845 кв.м просторна градина с външен басейн, беседка, място за игри и отдих, бистро с кафене през лятото, подземни гаражи, и е от затворен тип с такса поддръжка.
Таксата за този имот - 801.91 Евро без ДДС на година.
Таксата включва:
ефективен контрол на достъпа за всички посетители;
постоянни видеонаблюдение на комплекса;
неограничено ползване на басейна;
шезлонгите и чадърите в двора;
перфектно поддържане на зелените площи, детската площадка и градинската мебел;
почистване и поддръжка на общите части в цялата сграда.
За организиране на оглед, моля се свържете с отговорния брокер!
За повече информация свържете се с нас и цитирайте референтния номер на имота. Моля, кажете, че сте видeли обявата в този сайт.
Референтен номер: LXH-117074
Тел: 0884 178 791, 056 707 935
Отговорен брокер:Симеон Кръстев
Виж всички обяви в superimotiburgas.bazar.bg или тук
        
       
         
         
         
         
         
         
         
         
         
         
         
         
             
             
             
             
             
             
             
             
             
             
             
            






