Без комисиона от купувача.
Предлагаме Ви чудесен двустаен апартамент в новострояща се сграда в гр. Айтос.
Атрактивно местоположение.
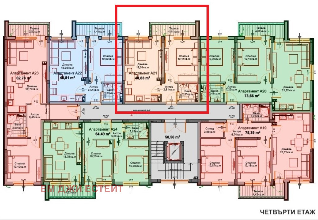
Апартаментът се състои от: всекидневна с обособени кът за хранене и кухня, спалня, баня с тоалетна, коридор и тераса. Склад в сутерена.
Степен на завършеност - 'на тапа'.
В сградата ще има асансьор.
Начало на строителството - 2023 год.
Срок за завършване - 2026 год.
Възможност за закупуване на паркомясто.
Предлагаме и други апартаменти /двустайни и тристайни/ в същата сграда.
**Можем да организираме оглед на имота в удобно за вас време, като за целта се свържете с нас на посочените телефони и цитирате този код: ДП-48734.
**Агенция Ем Джи Естейт е член на НСНИ и администратор на лични данни.
**Преди огледа се провежда среща в нашия офис, за да се запознаем с изискванията Ви и за да оформим документи съгласно ЗЗД и ЗМИП.
**По време на огледа се подписва Протокол за оглед.
**За този имот не се дължи комисион към агенцията.
**Предлагаме Ви юридическо съдействие през целия процес на покупката,
**Лицензиран кредитен консултант ще Ви съдейства при банково кредитиране.
Виж всички обяви в mgestate2020.bazar.bg или тук







