Без комисиона от купувача! Предстоящо строителство! Гъвкави схеми на плащане!
Представяме Ви нов ексклузивен проект с модерна архитектурна визия в добре устроеното село Тополи, което е само на 4 км от град Варна. Възползвайте се от изгодните цени, валидни само по време на строителството!
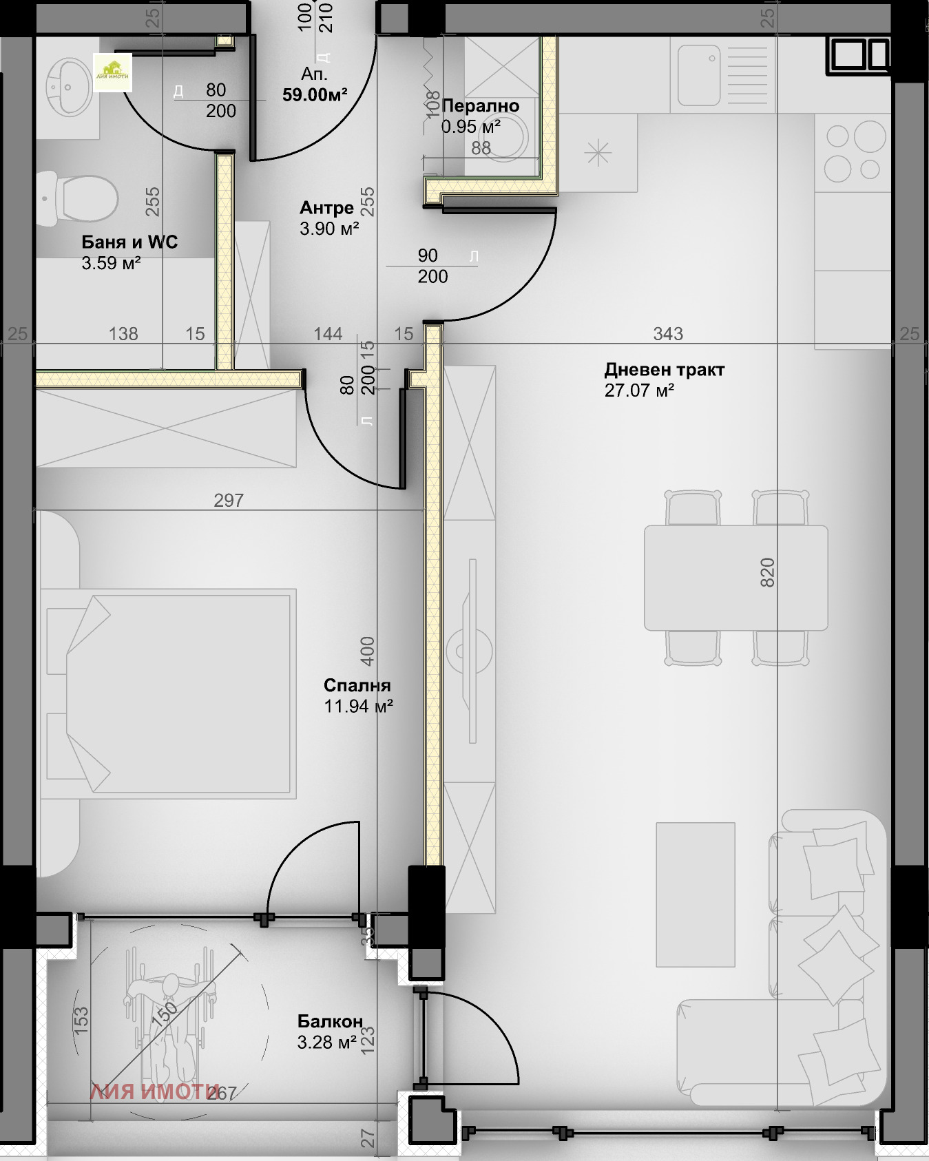
Разпределението на предлаганото жилище е следното, което може да се разгледа на приложеното разпределение: входно антре; просторна всекидневна с кухненска част-27 кв.м; спалня-12 кв.м; тераса с достъп от двете стаи; санитарно помещение и перално помещение .
Сградата е с модерен дизайн с френски прозорци, които ще допринасят за изобилие от естествена светлина.
Сградата е проектирана на четири етажа, всички апартаменти са с просторни помещения и добра функционалност.
Село Тополи, намиращо се на територията на общ. Варна е изключително добре устроено. Районът е с отлично изградена инфраструктура, предоставящ на своите обитатели всичко необходимо за комфортен живот. В Тополи има множество хранителни магазини, заведения за бързо хранене, здравно заведение, лаборатория, основно училище, детска градина, бензиностанция и множество други удобства за жителите! Тополи е само на 4 км входа на града и на 9 км от центъра на гр. Варна. Бърз и лесен достъп до всяка точка, удобен градски транспорт.
Към всеки имот има включено в цената паркомясто!
За допълнителна информация относно интересуващия Ви тип имот, моля свържете се с нас на тел.: 0895649820







