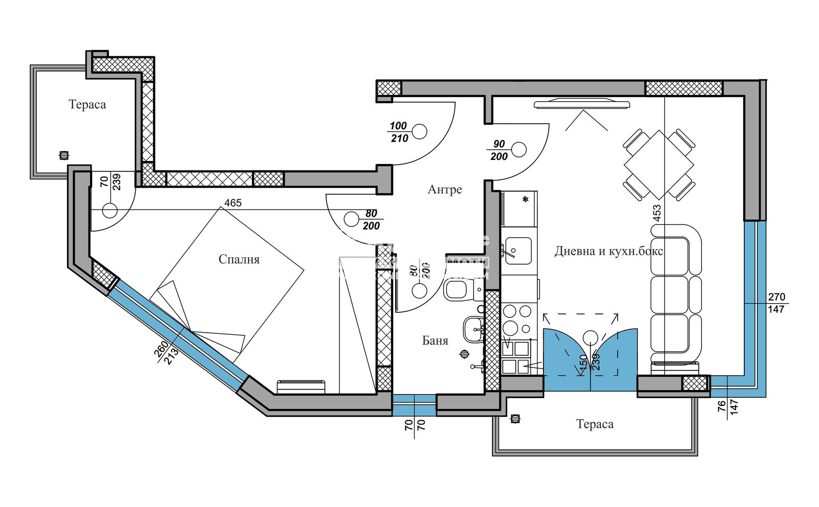
Оферта 62936:Представяме ви малка бутикова сграда на четири етажа- тип фамилна къща, състояща се САМО ОТ СЕДЕМ ЖИЛИЩА един от най-предпочитаните райони на Централна градска част между ТЦ Гранд и Военна болница! Апартаментът е с изложение ЮГ/ИЗТОК, състои се от светла дневна с кухненска част с големи прозорци, самостоятелна спалня, баня с тоалетна, входно антре и две тераси. Строителството се изпълнява по всички европейски изисквания за качество: под - замазка, стени шпакловка, ВиК до тапа, Ел. инсталация до ключ, пълно окабеляване, вътрешни интериорни врати и масивна входна блиндирана врата. Луксозно завършване на общи части фасада с каменна облицовка. Проблемът с паркирането е решен с гаражи и паркоместа във вътрешния двор. Предпочитан район поради бързия достъп до Главната пешеходна улица на града, множеството детски градини, университети, паркови среди и зелени зони, както и бърз излаз на централни възлови булеварди. Разсрочено плащане в рамките на строителството.
ВИЖТЕ ОЩЕ ИЗГОДНИ ОФЕРТИ НА https://www.kondorimoti.com/ С ЕЖЕДНЕВНА АКТУАЛИЗАЦИЯ!







