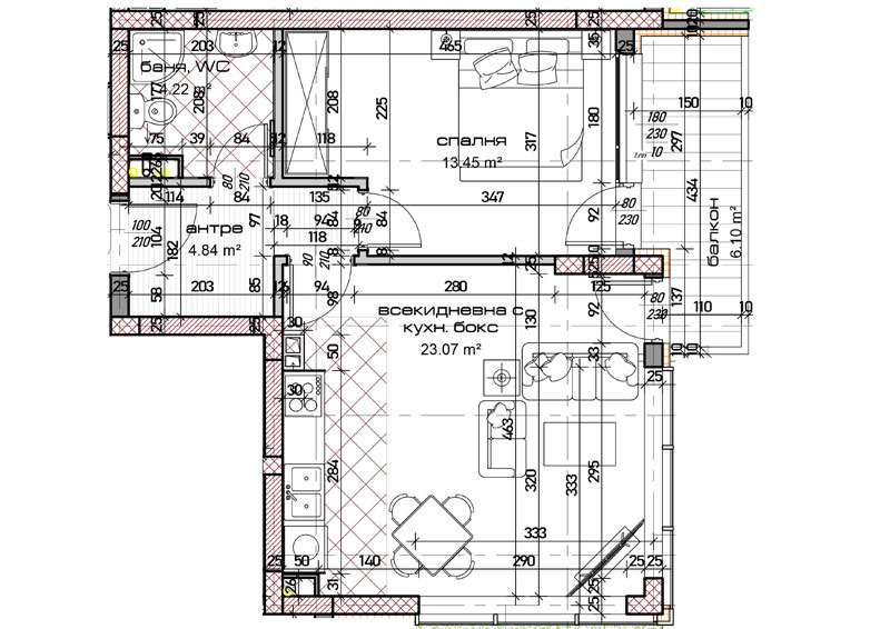
Двустаен апартамент ,в нов изключително луксозен жилищен проектс отлична локация в кв. Младост. Жилището се състои от дневен тракт 23кв.м и 13кв.м спалня , баня с тоалет, тераса. Завършен по БДС на шпакловка и замазка, с блиндирана входна врата. Възможност за закупуване на закрито или открито парко място или гараж.
Отлично местоположение с уредена среда и градски транспорт.Сградата ще се състои от два входа с модерна архитектурна визия и безкомпромисно качество на строителство.







