🔝 Property Store - Магазин За Имоти, Ви предлага 2-стаен апартамент за продажба в новострояща се сграда в гр. Варна, кв. Левски.
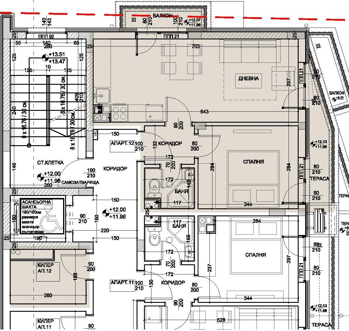
👉 Разпределение - дневен тракт с кухненски бокс, спалня, баня с тоалет, килер, тераса.
👉 Етаж - 5 от 8
👉 Имота се издава по БДС с възможност за завършване до ключ на ПРОМО цени
Общи части: луксозно завършени 100%;
Коридори, кухня и стаи: под циментова замазка, стени бяла гипсова мазилка, таван гипсова шпакловка;
Санитарен възел: стени и таван мазилка, под замазка, без санитарно обзавеждане;
Ел.инсталация: вътрешна и външна 100% завършени (плюс електромер);
ВиК: външна 100% завършена с монтиран главен водомер, вътрешна на тапа;
Външна врата: висок клас входни врати блиндирани;
Всички общи части на сградата ще са изпълнени луксозно.
Монтирани изводи за климатици във всички стаи.
Снимките са с цел придобиване на представа по какъв начин се издава апартамента и са от предходна сграда на инвеститора.
🤝 Агенция Property Store - Магазин За Имоти, Ви предоставя възможност за съдействие на преференциални условия за отпускане на Банков кредит.
🤝ЗА ПОДРОБНА ИНФОРМАЦИЯ И ОГЛЕДИ: Ивелин Радославов 0899 999 081
Виж всички обяви в propertystore.bazar.bg или тук
        
       
         
         
         
         
         
             
             
             
             
            






