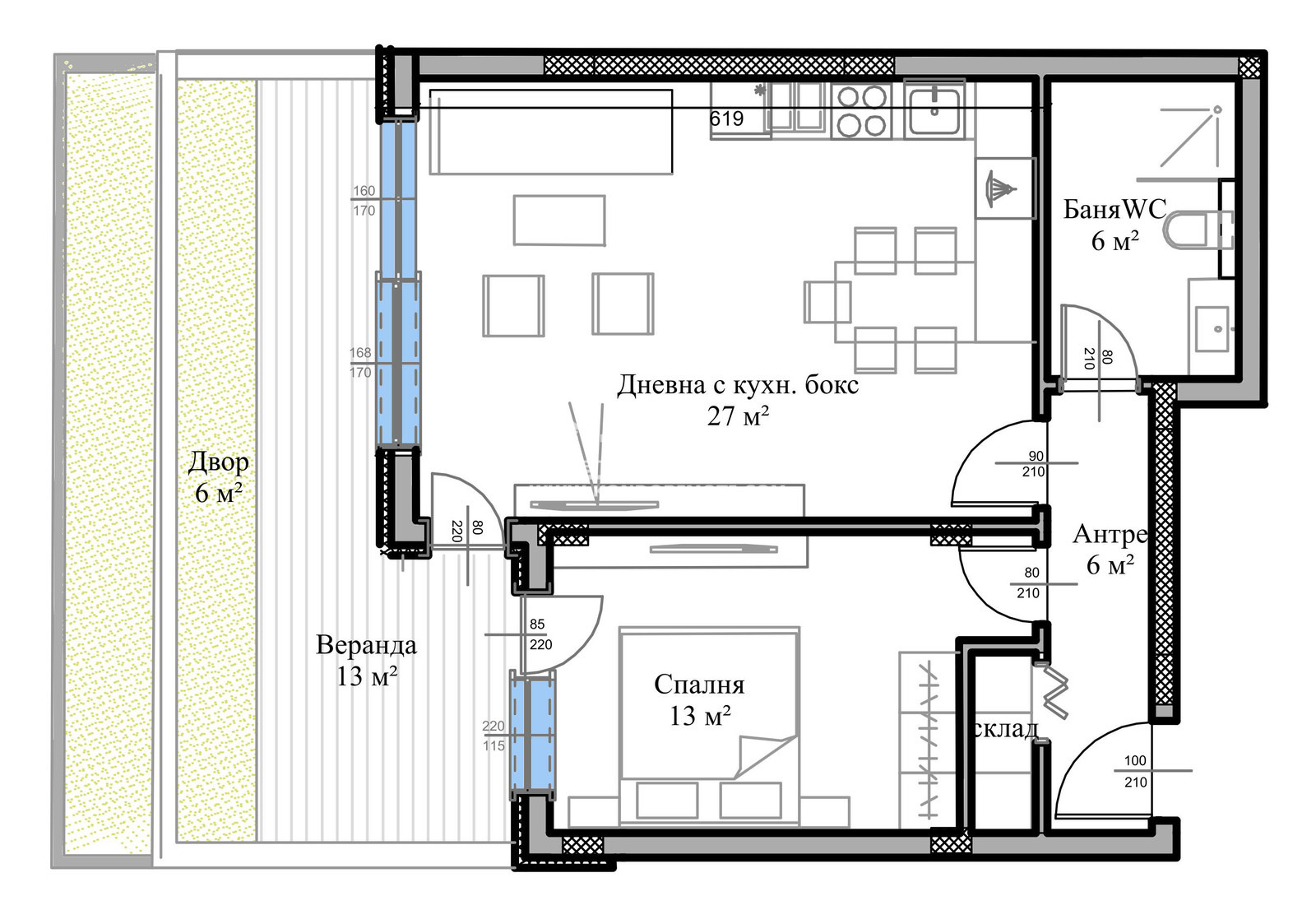
Разпределения - Предлагаме на Вашето внимание светли и функционални апартаменти. Двустаен - вътрешен с изложение ЮГ, състои се от дневна 27кв.м. с трапезария и кухненски бокс с излаз на обща веранда, самостоятелна спалня 13кв.м. голяма баня с тоалетна-6кв.м., входно антре с място за гардероб и самостоятелен озеленен двор. Имате възможността да си закупите жилище с една, две или три спални!
Материали - Проектирана с изключително нисък процент общи части, жилищната сграда се изгражда в унисон с най-високите европейски стандарти за качество. Използваните материали са съобразени с най-новите тенденции в строителството - модерна външна облицовка, покривна и фасадна изолация, PVC пет камерна дограма, луксозни общи части и др., допринасят допълнително за усещането за лукс и комфорт на обитателите.
За удобството на своите собственици, сградата разполага подземен паркинг с Гаражи и Паркоместа, както и Паркоместа ситуирани в двора! Локация - Районът на булевард Южен, близостта на големи супермаркети, училища и детски градини, допълнително внася комфорт в ежедневието на хората.
Начин на плащане - Кондор имоти предлага възможност за банково финансиране от водещи банки на преференциални условия. Разсрочено плащане в рамките на строителството. ВИЖТЕ ОЩЕ ИЗГОДНИ ОФЕРТИ НА https://www.kondorimoti.com/ С ЕЖЕДНЕВНА АКТУАЛИЗАЦИЯ!
Виж всички обяви в kondor.bazar.bg или тук







