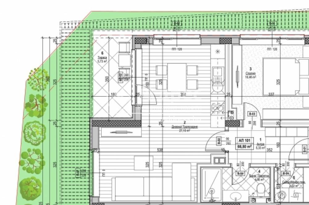
Апартамент 101 се намира на първият етаж на сградата и е с гледка към морето. Този апартамент притежава прилежащ собствен двор, което на практика го доближава до къща. Чистата площ на апартамента е 66.8 кв.м. Общата му площ е 77.14 кв.м. Общите му части са 10.34 кв.м.
Големината на антрето е 5.30 кв.м., размерът на спалнята е 10.71 кв.м., банята и тоалетната са в едно свързано помещение от 3.97 кв.м. Апартаментът притежава и склад с площ от 2.23 кв.м., както и тераса с площ от 4.73 кв.м.
Изготвени са планове за интериорният дизайн на всеки апартамент, които могат да улеснят работата по подготвянето на апартаментите за живот.
/Акт 16/ май 2024 г.
Удобства в комплекса
- Контролиран достъп
- В близост до детски градини
- В близост до училища
- В близост до плаж
- В близост до парк
Обади се сега и цитирай този код 588990
Виж всички обяви в addressburgas.bazar.bg или тук
        
       
         
         
         
         
             
             
             
            






