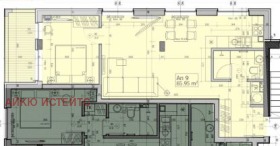
БЕЗ КОМИСИОННА ОТ КУПУВАЧА. Малка бутикова сграда в начален етап на строеж. Намира се близо до площад ЗНАМЕ НА МИРА, бул.Александър Пушкин, бул. Цар Борис III, ФАНТАСТИКО и градски транспорт. Просторен двустаен апартамент, състоящ се от коридор всекидневна с кухненски бокс, спалня, баня с тоалетна, складово помещение, и тераса. Чиста площ 66кв.м. Отопление- газ. Възможно е закупуването на подземен гараж на цена от 48000 евро, и на външно паркомясто на цена от 12000 евро. Продава се на ш/з. Избор на двустайни и тристайни апартаменти. Схема на плащане:
30% на предварителен договор, 20% на Акт 14, 20% монтаж на дограма, 20% на Акт 15 и 10% при издаване на разрешение за ползване- АКТ 16
което се очаква в началото на 2028г. Нашите брокери работят без почивен ден от 09:00 до 21:00 часа.







