КОШЕР - Нов елитен комплекс на бул. 'България', с Разрешение за ползване
Комплексът свързва градската среда с природата, с визия за промяна в усещането за живот в града. Естетичното усещане на тази нова стилистика, съчетава новите архитектурни тенденции и технологии с повече зеленина и свободни пространства. Състои се от жилища и офиси, допълнени от сгради с обществени функции. Комплексът ще разполага с магазини, спортен център, йога студио, зелени площи в паркова среда по специален ландшафтен проект, дълга алея за бягане. Обширните зелени паркове и алеите за разходки заемат съществена част от цялото пространство. Усещането за простор се засилва от заобикалящата ни природа. Предвидени са ресторант и бистро, детска градина, с просторни зали и външен двор с място за игра.
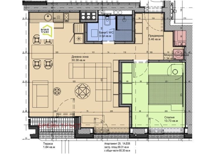
Предлага се за продажба 2-стаен апартамент, разположен на осми етаж, със западно изложение. Чистата жилищна площ е 69.31 кв. м и е разпределена по следния начин: простерна дневна част - хол, тряпезария, кухненски бокс, спалня, баня с WC, мокро помещение, една широка и 2 по-малки тераси.
Апартаментът се предлага за продажба напълно обзаведени оборудван с висок клас уреди марка Miele.
Жилищната част на комплекса представя функционални и светли пространства, с индивидуален характер за пълноценен начин на живот и прекрасни гледки към града или Витоша.
Въведен в експлоатация
Към момента имотът е отдаден под наем с добра доходност и това го прави изключително подходящ за инвестиция.
Има възможност за покупка на голям гараж или на паркомясто.
Код на офертата 4628
За повече информация и контакт 0877 214 549







