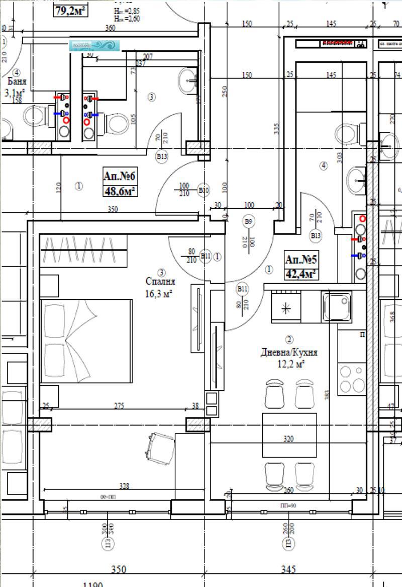
Всички жилища имат удобно и функционално разпределение, с просторни стаи, панорамна гледка към паркова зона и Лозенска планина и Витоша. Двустайни, тристайни и четиристайни апартаменти с квадратури от 48м2 до 120м2, като на последните два етажа разположени по големи жилища с квадратури от 125 м2 до 170 м2. Към всеки предлага се мазе по избор.
Сградата ще бъде изпълнена с висок клас материали, луксозни общи части, термо изолирани фасади, инсталация за климатици и ТЕЦ.
Предлагат се паркоместа и гаражи.
Гъвкава схема на плащане. Цени от 28000 Евро на м2 без ДДС. Предлагаме съдействие за кредит
Виж всички обяви в karratg.bazar.bg или тук
        
       
         
            






