Без комисона. Нов двустаен апартамент в сграда без такса за поддръжка, подходяща за целогодишно ползване.
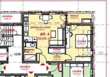
Плаж Харманите е на около 450 м. Апартаментът е на втори етаж и се състои от антре, дневна с кухненски бокс, спалня, баня с тоалетна и тераса. Имотите ще се предават без довършителни работи (на шпакловка и замазка).
Сградата ще бъде снабдена с Разрешение за ползване в м. 12.2023г. Има възможност за закупуване на паркомясто. В същата сграда има и други подобни имоти. На разположение съм за предоставяне на допълнителна информация.
Референтен номер 748







