*СТРОИТЕЛНО ИНВЕСТИЦИОННА КОМПАНИЯ* Жилищният комплекс 'LUX Building 6' е проектиран на отлична локация в гр.София с модерна, стилна визия от водещ архитект и с красиво аранжиран вътрешен двор, ограден и обезопасен със система за контрол на достъпа и видеонаблюдение. Комплексът се намира в бързоразвиващия се квартал Малинова Долина в близост до новоизградения булевард Проф. Крикор Азарян непосредствено близо до Национална Спортна Академия и Зимния дворец. Комплексът е с бърз достъп до бул. Симеоновско шосе, Околовръстен път, Климент Охридски и ул. Проф. д-р Иван Странски на пешеходно разстояние до магазините Кауфланд и Фантастико, на 10 минути път от центъра на града и на 5 минути от Търговски центрове, Ринг Мол, IKEA.
Най голямото преимущество на комплекса е близостта на бъдещата метростанция на синята линия, която е на 500 метра от сградата.
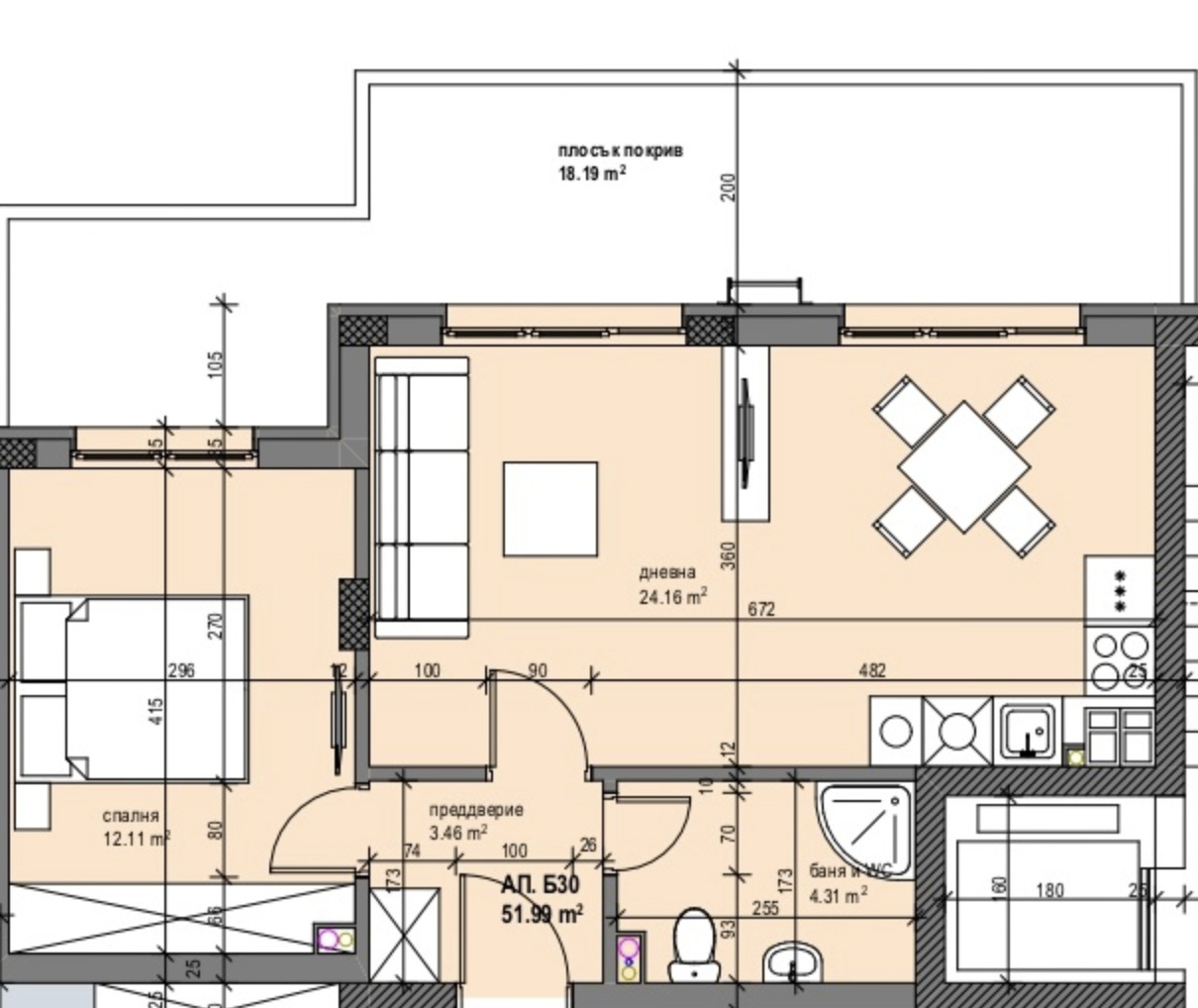
**Апартаментите ще се издават спрямо БДС: на шпакловка и замазка, ел. инсталация до ключ, ВиК до тапа, PVC дограма петкамерна цвят антрацит(четири сезона стъкло), луксозна входна блиндирана врата. *Монолитна стоманобетонна конструкция, външни стени керамични тухли WIENERBERGER топлоизолация и мазилка пакет на BAUMIT 10см. *Общи части на сградата от естествен гранит/мрамор. Асансьор испански ОРОНА. *Завършване на строителството 31.03.2025. ап.А39 с тераса 68 кв.м. *Инвеститорите на комплекса са ВАРАН ООД и ЛУКС Билдинг Инвест ООД с повече от 14 години опит в строителството и с над 30 завършени проекти в четири областни града (София, Пловдив, Хасково, Кърджали) За повече информация се свържете на: тел. 0885010101 [email protected] [email protected] *ЦЕНИТЕ СА С ВКЛЮЧЕНО ДДС*
Виж всички обяви в luxbuilding.bazar.bg или тук
        
       
         
         
         
         
         
         
         
         
         
         
         
         
         
         
         
         
         
             
             
             
             
             
             
             
             
             
             
             
             
             
             
             
             
            






