Translations in other languages:
All real estate ads published on imot.bg have been translated into English and published on the partner site
Получихте нова обява по филтър





Промяна на цена на наблюдавана обява


стара цена
нова цена
imot.bg – обяви за продажби и наеми на имоти
Сайт за имоти №1
Translations in other languages:
All real estate ads published on imot.bg have been translated into English and published on the partner site
ДОБАВИ ОБЯВА Редакция на обява
Начало Публикуване Търсене Нови сгради Агенции Новини Кредити + Още... Моят имот
Продава 2-СТАЕН
град Варна, Център
бул. Княз Борис I 57
При запитване
Коригирана в 11:54 на 30 юни, 2025 год.
Обявата е посетена 4559 пъти.
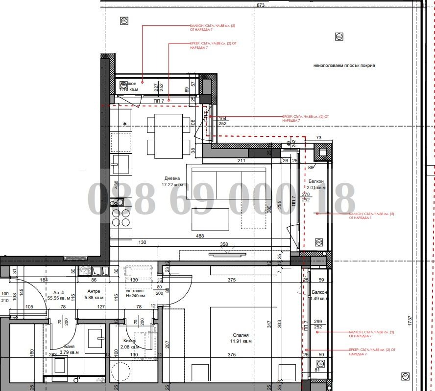
Площ:
108 m2
Етаж:
4-ти от 7
Строителство:
Тухла, Ще бъде въведен в експлоатация 2026 г.

Описание на имота:


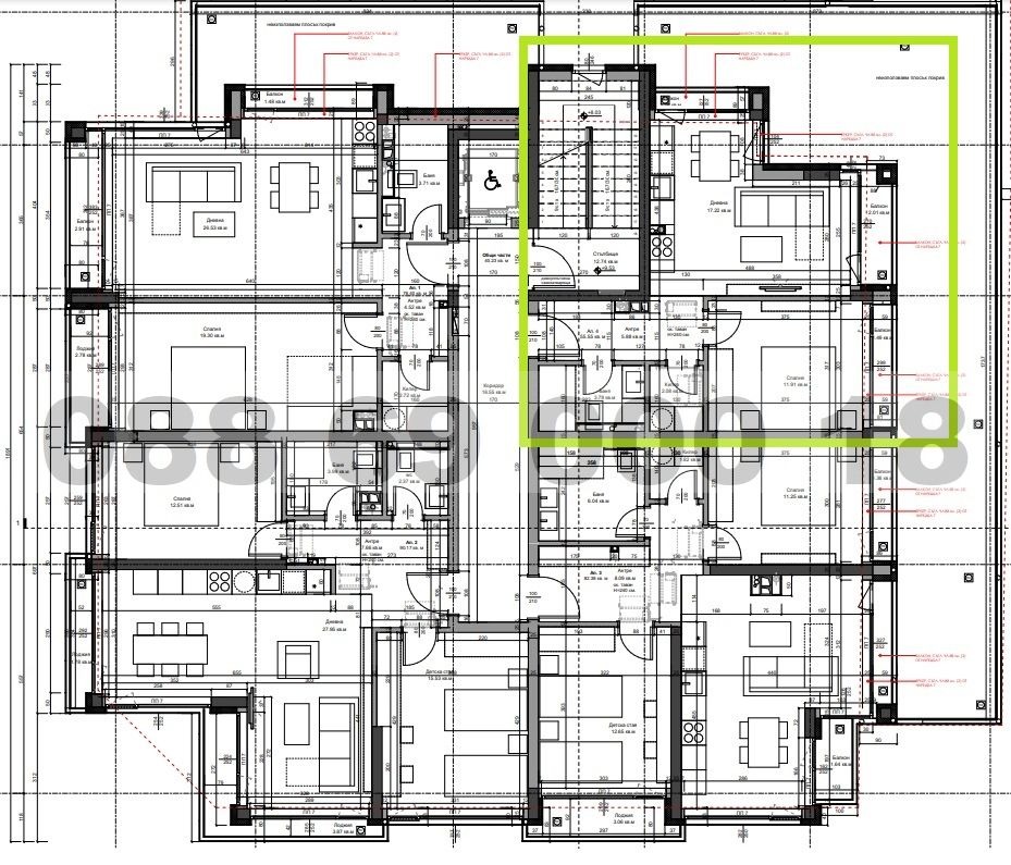
Инвеститорска и строителна компания с 20 годишен опит в изграждането на жилищни, смесени, офисни , многофамилни и еднофамилни сгради на територията на Варна и София представя най-новата и емблематична сграда ситуирана на най-желаната локация в идеалния център на град Варна булевард Княз Борис I 57 . Севастополу, х-л Черно море, Икономически Университет, хотел Графит , пешеходната зона и плажа. Социалната и градската инфраструктура са напълно обезпечени в този район. Проектът е дело на най-доброто архитектурно бюро във Варна и е едно от най-титулованите в България, а именно екипът на СТАРХ и в частност архитект Светослав Станиславов. Сградата е със смесено предназначение. Разполага със подземен паркинг на три нива с бетонна рампа, на партерен етаж са разположени 4 бр. магазини, втори етаж: офиси, трети етаж: кабинети за творческа дейност, от 4-ти до 7-ми включително: жилищна част. Конструкцията е монолитна стоманобетонна. Концепцията на проекта е изградена около правоъгълната ортогонална форма в план, която е пренесена и на фасада, но за да създаде динамика е разделена на множество кубични форми, които една спрямо друга сменят местоположението си в пространството. Така се образува динамична кубична фасадна структура изградена от най-съвременни и дълговечни материали като стъкло, метал и камък. Фасадите са максимално отворени към хоризонта посредством големи витрини. Имотът се състои от дневен тракт, спалня, баня с тоалет, антре, килер и открита тераса. Изложение североизток, север, северозапад . Статутът на имота е апартамент. Светлата височина на помещенията е 2,67 м. Въвеждане в експлоатация / акт 16 / е със срок не по-късно от септември 2026 г. Имотите се издават по БДС . Начините на плащане са индувидуални и се договарят лично За индивидуална оферта, посещение на терен, среща в офис моля звънете на 00 359 886 9000 18 или ни пишете на [email protected] Моля разгледайте всички наши обекти в строеж на профила.
Виж всички обяви в dmiinvest.bazar.bg или тук
Особености
Тухла
Асансьор
С гараж
С паркинг
Контрол на достъпа
Възможност за дан. кредит
За контакт:
0886900018
Строителна фирма:
ФИЛВИК АД ЕИК 202515887
0886900018
ФИЛВИК АД ЕИК 202515887 logo
Медал за прослужено време
В imot.bg от 2018 г.
dmiinvest.imot.bg
Адрес:
област Варна, гр. Варна, ул.' Братя Миладинови' 20 , ет.1
http://filvik.com
ИЗПРАТИ ЗАПИТВАНЕ
ИЗПРАТИ ЗАПИТВАНЕТО

Продава 2-СТАЕН
град Варна, Център
бул. Княз Борис I 57
Обява: 1b165416917233022

При запитване

ЗАПАЗИ ОБЯВАТА

Местоположение: град Варна, Център, бул. Княз Борис I 57

Виж още имоти от Варна или още Двустайни Апартаменти във Варна
Допълнителни данни за имотите в района и сравнение с други райони: Търсене в АРХИВ 2013 - 2025 г.











Добави/редактирай
вид имот и район
*Средните цени са определени чрез медиана стойност.
Още обяви в imot.bg
КОНТАКТИ | SMS КОДОВЕ | СТАТИСТИКА | ПОМОЩ | ОБЩИ УСЛОВИЯ | РЕКЛАМА | ТОП ОФЕРТА | Въпроси и предложения към imot.bg
Резон Медия | Имоти | Автомобили | Работа | Новини | Обяви | Преводи и легализация 2002-2025 ® Copyright imot.bg
© imot.bg ползва и препоръчва хостинг услугите на Bulinfo.net
Следвайте ни в: