Без комисионна от купувача!
Цената е промоционална 950 евро/кв.м.!
Плащат се 80% от сумата, останалите на Акт 16!
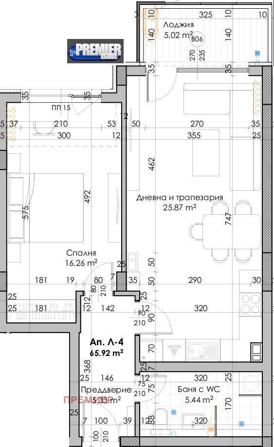
Предлагаме Ви двустаен апартамент с Акт 14,в новострояща се сграда в кв. Кючук Париж.,в близост до комплекс Оазис 4 и 6. Сградата се изгражда от утвърден строител! Апартаментът се издава на шпакловка и замазка.
Разпределение:
Дневна с трапезария и кухненски бокс, спалня, баня с wc, лоджия
ЗАСТРОЕНА ПЛОЩ 65,92 кв.м
ОБЩИ ЧАСТИ 13,54 кв.м
ОБЩА ЗАСТРОЕНА ПЛОЩ 79,46 кв.м
Към апартамента се закупува отделно изба около 2 кв.м.!
Има възможност за закупуване на паркомясто или гараж!
Съдействаме за отпускане на ипотечни кредити от всички водещи банки напълно безплатно!
Не оставяйте инфлацията да продължава да стопява спестяванията Ви, инвестирайте в имот!
Виж всички обяви в premier.bazar.bg или тук







