ИЗГОДНО ПРЕДЛОЖЕНИЕ 2-СТАЕН АПАРТАМЕНТ Никор Имоти Стара Загора предлага двустайни и тристайни апартаменти в 4-етажна новострояща се сграда с гъвкави схеми на разсрочено плащане
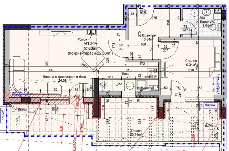
2стаен апартамент, състоящ се от: входно антре, баня с тоалетна, всекидневна с кухн. бокс, спалня и тераса.
Изложение: юг
Възможност за закупуване на гараж или паркомясто.
Подробна информация и пълна консултация при избора на #новостроителство можете да потърсите от нашите брокери: 0892011066/ 0897011088 📞 ул. Кольо Ганчев 33 ПАРТЕР бизнес сграда МОДЕНА
Виж всички обяви в nicorinvest.bazar.bg или тук







