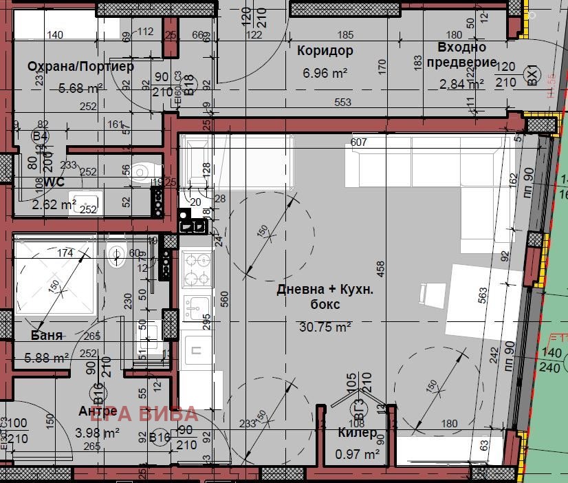
ЕРА Вива предлага за продажба едностаен апартамент в новострояща се сграда в кв. Изгрев, гр. Варна. Имотът е разположен на първи, партерен от общо шест етажа и е със застроена площ от 47.40 кв.м. /54.55 кв.м. с общите части/. Състои се от дневна с кухненски бокс /30.75 кв.м./, входно антре /3.98 кв.м./ и баня с тоалетна /5.88 кв.м./. Жилището ще бъде завършено по БДС, с поставена ПВЦ дограма и блиндирана входна врата. Отоплението е предвидено на ток.
Сградата е шестетажна, тухлена, с асансьор и се намира в етап преди Акт 14, като въвеждането в експлоатация се очаква през 2028 г. Предлага се възможност за закупуване на открито паркомясто на цена от 16 000 евро или подземно паркомясто на цена от 21 000 евро. В нея се предлагат и други апартаменти с различна квадратура и функционални разпределения.
Локацията е удобна и комуникативна в района на бул. Христо Смирненски и хипермаркет Билла на ул. Подвис, с бърз достъп до различни точки на града. В близост се намират Военна болница, Цветен квартал и квартал Левски, както и детска ясла, детски градини, училища, Втори корпус на Икономически университет и спирки на градския транспорт.







