Предлагаме за продажба студио в новострояща се сграда в стария град на Поморие, на пешеходно разстояние от плажа, центъра, магазини и заведения.
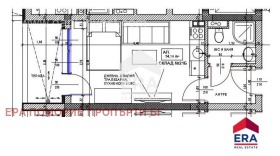
Имотът е със застроена жилищна площ 34,16 кв.м, склад 2,91 кв.м., и обща площ 43,09 кв.м. Състои се от еднопространствено помещение с изводи и място за кухненски бокс, зона за сън , зона за почивка , баня с тоалетна, тераса.
Сградата е на етап Акт 14, с планирано завършване през 2027 г. Студиото се издава на степен на завършеност до ключ : подови настилки в коридор-гранитогрес, бяла санитария в банята и WC, кухня-гранитогрес, дневна и спалня - ламинат.
Имотът се предлага на атрактивна цена, подходящ както за ваканционен имот, така и за инвестиция.
Всеки имот от ЕРА е лично проверен и заснет от наш консултант.
CREDITERA е регистриран кредитен посредник към БНБ и предоставя всички видове кредити към всички банки безплатно!
Заявете финансиране за избрания от Вас имот още днес ние ще Ви помогнем с усмивка и професионално отношение!
Над 360 консултанти на ЕРА вече реализират мечтите на клиентите си станете и Вие част от нас!
Оферта 2302197







