БИЛДИНГ БОКС представя сграда, която се отличава с просторни жилища с перфектно разпределение и високо качество на строителството, изпълнено от опитни професионалисти, които осигуряват сигурност и комфорт за бъдещите обитатели.
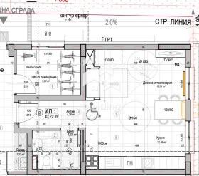
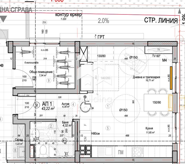
Имотът е едностаен и е със застроена площ от 43.22 кв.м. Има следното разпределение: входно антре, дневна с трапезария и баня с тоалетна.
Изложението на имота е изток.
Намира се на партерен етаж от общо 6. Отоплението е на ТЕЦ - ще има изводи за климатици с мултисплит, както и предвидено място за бойлер.
Жилищният комплекс е изпъкващ сред сградите в района с иновативен дизайн, модерна фасада и перфектни архитектурни решения. Ще предостави комфорт за бъдещите си собственици и всички необходими удобства за днешния градски живот. При изграждането на проекта ще бъдат използвани висококачествени материали и технологии.
Сградата е на втора плоча и ще бъде завършена м. Октомври 2028 г.
Местоположението на сградата е изключително удобно в непосредствена близост до спирки на градски транспорт, магазини и супермаркети, училища и детски градини. Районът е добре устроен с множество зелени междублокови пространства и поддържана среда за живеене. Локацията осигурява бърз достъп до основни булеварди като Шипченски проход и Цариградско шосе , което позволява лесно и удобно придвижване до всички части на града.
БИЛДИНГ БОКС предоставя безплатна консултация и съдействие при финансиране на избрания от Вас имот.
Оферта 27306







