Предлагаме за продажба просторен едностаен апартамент с АКТ 16, разположен в модерна сграда, в непосредствена близост до МакДрайв и с бърз достъп до центъра на града.
📍 Етаж: 5 от 8
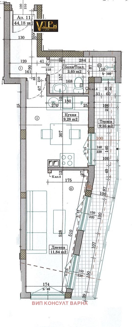
Разпределение:
Просторна дневна с кухня и трапезария
Баня с тоалетна
Антре
Тераса
Изба
Апартаментът се намира в нова сграда с отлични общи части и удобна локация. Близо до магазини, спирки на градски транспорт, училища и основни пътни артерии.
✔ Подходящ както за живеене, така и за инвестиция.
📞 За повече информация и оглед свържете се с нас!



