СРЕДЕН ЕТАЖ! ЮГОЗАПАДЕН!
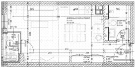
Представяме Ви едностаен апартамент в кв.Малинова Долина точно до бъдеща метростанция, Кауфланд и Фантастико. Статутът е апартамент и е с площ от 38м2 и чиста жилищна площ 33м2. Състои се от входно антре, баня с тоалетна, хол с кухня, където може да се обособи дрешник, секция и легло и тераса с гледка към вътрешния двор. Отоплението е предвидено да бъде на газ и има възможност за електричество с изводи за климатик. В момента е на етап пред Акт15, с очакван Акт16 - септември 2026г.
За повече информация и огледи - ID 1880 - Веселин Вълев - 0988 91 8888






