Студио/Ателие кв. Малинова Долина, Бул. Живко Сталев в частта към НСА.
Номер на обявата в агенцията 19248.
С АКТ 15!!!! АКТ 16 - МЕСЕЦ февруари 2026Г.
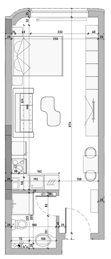
Предлагаме студио/ателие с обща площ 42 кв.м, състоящо се от:
Преддверие
Дневна с кухня и трапезария и спален кът
Баня с тоалетна
Отоплението е на ТЕЦ и климатик. Сградата е с взет акт 15. Акт 16 до края на годината.
Луксозни общи части , озеленен двор.
За повече информация или за организиране на оглед, моля свържете се с нас на тел. 0885706434
Studio/Atelier
We are pleased to offer a studio/atelier with a total area of 40 sq.m, consisting of:
Entrance hall
Living room with kitchen and dining area
Bathroom with toilet
For more details or to schedule a viewing, please contact us.
Offer 19248, tel.0885706434







