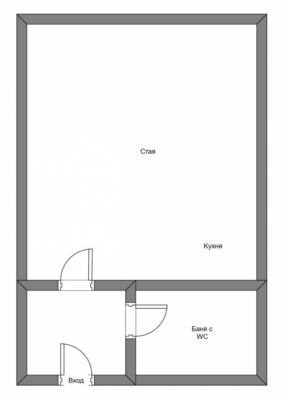
Жилището се състои от: входно антре, една голяма стая с кухненски бокс, баня с тоалетна.
По статут имотът е студио. Има самостоятелен вход.
Намира се в най-хубавата и търсена част на кв. 'Гео Милев', на метри от хотел Плиска ( настояща централа на ЦКБ ) В близост до училища, детски градини, спирки на градски транспорт, големи търговски центрове и парк.
Сградата е тухлено строителство с Разрешение за ползване от 1997 година.
Престижна локация. Район с изградена инфраструктура. Лесен за отдаване под наем
Обади се сега и цитирай този код 612708
Виж всички обяви в address.bazar.bg или тук
        
       
         
         
         
         
         
         
             
             
             
             
             
            






