с. Кранево, обл. Добрич
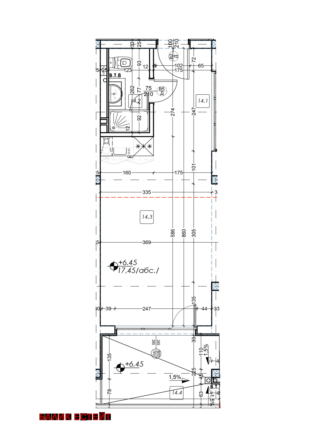
БАЛИК ЕСТЕЙТ ПРОДАВА студио със ЗП от 56,78 м² в сграда идеално разположена в центъра на курортния комплекс в непосредствена близост до всички необходими удобства. В допълнение имота разполага със собствен двор с площ от 7,54 м². Сградата е с модерен дизайн изградена с висококачествени материали и с акт 16.
Цена: 68 495 евро
Степен на завършеност:
✔Баня: подови настилки-теракот, стени фаянс, моноблок.
✔Интериорни врати МДФ, входна метална врата Hormann.
✔ПВЦ дограма с двоен стъклопакет, цвят-графит.
За повече информация не се колебайте да се свържете с нас.
тел. +359 (0)878 89 23 65
e-mail: [email protected]
Екип БАЛИК ЕСТЕЙТ!
Виж всички обяви в balik-estate.bazar.bg или тук
        
       
         
         
             
            


