ЕДНОСТАЕН АПАРТАМЕНТ В КВ. БЕЛОМОРСКИ
НОВОИЗГРАЖДАЩА СЕ МАЛКА СГРАДА С МАЛЪК ПРОЦЕНТ ОБЩИ ЧАСТИ
ГЪВКАВА И УДОБНА СХЕМА НА ПЛАЩАНЕ
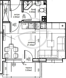
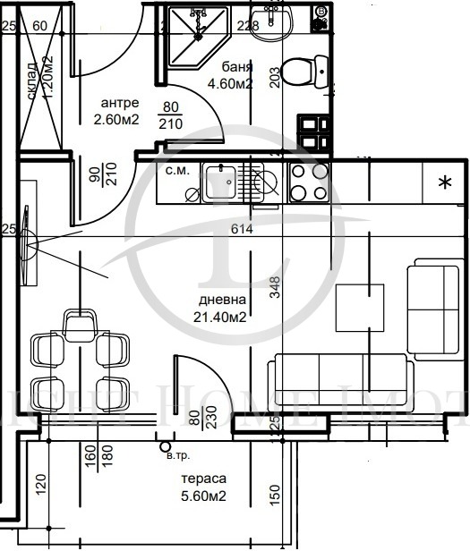
Основни характеристики:
-Площ- 47кв.м.
-Разпределение- Хол с кухненски бокс и кът за спане, баня с тоалетна, склад, входно антре и тераса
-Изложение- Североизток
-Етажност- 2ри етаж от 4
-Паркиране- Възможност за покупка на паркомясто или гараж
Всички жилища ще се издават на степен на завършеност шпакловка и замазка ВиК до тапа и Ел инсталация до ключ.
Утвърден във времето строител с множество завършени сгради.
За повече информация и организиране на огледи, моля, свържете се с нас на посочения номер, като ще Ви е необходим следният референтен номер: 3033
Лайт Хоум имоти е доверен партньор на най-големите банкови институции в страната и съдейства за преференциални условия при нужда от кредитиране. Ще получите юридическо съдействие през целия процес на сделката, както и съдействие при подготовка, подаване и получаване на всички необходими документи за сделката.
Виж всички обяви в lighthomeimoti.bazar.bg или тук







