Translations in other languages:
All real estate ads published on imot.bg have been translated into English and published on the partner site
Получихте нова обява по филтър





Промяна на цена на наблюдавана обява


стара цена
нова цена
imot.bg – обяви за продажби и наеми на имоти
Сайт за имоти №1
Translations in other languages:
All real estate ads published on imot.bg have been translated into English and published on the partner site
ДОБАВИ ОБЯВА Редакция на обява
Начало Публикуване Търсене Нови сгради Агенции Новини Кредити + Още... Моят имот
Продава 1-СТАЕН
град Пловдив, Тракия
54 927 €
107 427.87 лв.

(1 144 €, 2 237.47 лв./m2)
Не се начислява ДДС
История на цената
Публикувана в 11:09 на 23 октомври, 2025 год.
Обявата е посетена 42 пъти.
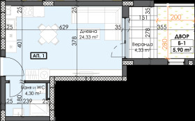
Площ:
48 m2
Етаж:
Партер от 10
Строителство:
Тухла, Ще бъде въведен в експлоатация 2027 г.

Описание на имота:


Продаваме нов едностаен апартамент тип партер с веранда; в напреднал строеж, пред акт. 14. Сградата се намира в кв. Тракия, близо до големи търговски вериги и удобни транспортни връзки. Подходящ за живеене и инвестиция. Цена: 54927 евро. тел. 0887942903
Виж всички обяви в tara2011.bazar.bg или тук
Особености
Тухла
Асансьор
Саниран
За контакт:
0887942903

Този имот се предлага само на частни лица
Агенция:
ТАРА
0898 398496, 0887 942903
ТАРА logo
Медал за прослужено време
В imot.bg от 2006 г.
tara2011.imot.bg
Адрес:
област Пловдив, гр. Пловдив, ПЛОВДИВ, УЛ. ' Г. М. Димитров ' 5, партер
ИЗПРАТИ ЗАПИТВАНЕ
ИЗПРАТИ ЗАПИТВАНЕТО

Продава 1-СТАЕН
град Пловдив, Тракия
Обява: 1a176120695612497

54 927 €
107 427.87 лв.
История на цената
(1 144 €, 2 237.47 лв./m2)

Не се начислява ДДС
ЗАПАЗИ ОБЯВАТА

Местоположение: град Пловдив, Тракия

Виж още имоти от Пловдив или още Едностайни Апартаменти в Пловдив
Допълнителни данни за имотите в района и сравнение с други райони: Търсене в АРХИВ 2013 - 2025 г.











Добави/редактирай
вид имот и район
*Средните цени са определени чрез медиана стойност.
Още обяви в imot.bg
КОНТАКТИ | SMS КОДОВЕ | СТАТИСТИКА | ПОМОЩ | ОБЩИ УСЛОВИЯ | РЕКЛАМА | ТОП ОФЕРТА | Въпроси и предложения към imot.bg
Резон Медия | Имоти | Автомобили | Работа | Новини | Обяви | Преводи и легализация 2002-2025 ® Copyright imot.bg
© imot.bg ползва и препоръчва хостинг услугите на Bulinfo.net
Следвайте ни в: