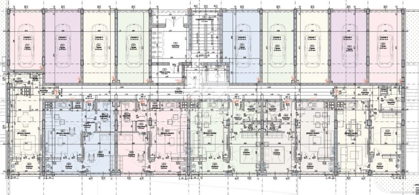
Агенция Живена продава едностаен апартамент с обща площ 43.2 кв.м в сграда след Акт 14, кв. Възраждане. Разположен е на 1-ви (партерен) етаж в 7-етажна нова сграда с асансьор. Разпределението на имота е следното: коридор, дневна с трапезария, баня с тоалетна, килер и лоджия. Изложението му е южно, слънчев и топъл апартамент. Апартаментите ще се издават в степен на завършеност по БДС, на фина замазка и шпакловка. В сградата се предлагат и други двустайни апартамента за продажба на различни етажи и разпределения. Сградата е проектирана със съвременен дизайн, с модерни общи части, разполага с луксозен асансьор, а фасадата е с топлоизолация. Сградата е изпълнена от строител, доказал се с множество качествено изградени, завършени и влезли в експлоатация сгради. Състои се от 7 надземни етажа и 2 подземни етажа. Има възможност за покупка на паркомясто на цена 26 000 евро. Сградата е с отличен достъп, в близост до магазини, детски площадки, автобусни спирки, в непосредствена близост до основни пътни артерии, което я прави леснодостъпна и само на минути до центъра на града. Агенция Живена извършва необходимите проверки на имота, който сте избрали, организира всички етапи на сделката до нейното финализиране. Оказваме съдействие за отпускане на банков кредит. Оферта 7387







