БИЛДИНГ БОКС предлага за продажба студио в кв. Дружба 1.
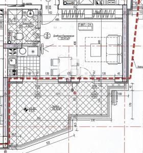
Апартаментът се състои от: еднопространствено помещение с кухн. бокс , дневна и кът за спане, баня с тоалетна и тераса.
Изложение: Запад.
Имотът се намира на четвърти етаж от общо шест.
Ще бъде предаден на шпакловка и замазка, като има възможност, за довършителни работи на преференциални цени.
Сградата е разположена в най- хубавата част на кв. Дружба - до езерото, с модерна архитектура, функционални разпределения и отлична локация. Концепцията e осъществена, с мисъл към семейството и за хора, които не биха направили компромис с дома си.
Състои се от: 37 апартамента от различна големина и 42 паркоместа.
На пешеходно разстояние се намират - училище, детска градина, хранителни магазини , парк Езерото, метростанция.
Районът предоставя на своите бъдещи жители и техните гости отлични условия за спокоен живот.
Планиран срок за въвеждане в експлоатация на комплекса - Юни месец 2026г.
БИЛДИНГ БОКС предоставя безплатна консултация и съдеиствие при финансиране на избрания от вас имот.
Оферта 25756







