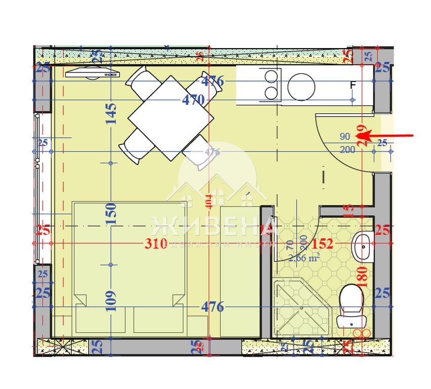
Агенция ЖИВЕНА предлага за продажба едностаен апартамент в сграда с Акт 16, разположена в централната част на с. Кранево на около 500 м от плажа. В сградата се продават едностайни и двустайни апартаменти, завършени До ключ . Всеки апартамент има паркомясто, при желание може да се закупи допълнително на цена 8 500 евро. Едностайният апартамент е разположен на 2-ри етаж в 5-етажна сграда без асансьор. Жилището е с площ 26 кв.м, със следното разпределение: коридор, голяма дневна с кухня-трапезария без тераса, обзаведена баня с тоалетна. Апартаментът е обзаведен. Агенция Живена извършва необходимите проверки на имота, който сте избрали, организира всички етапи на сделката до нейното финализиране. Оказваме съдействие за отпускане на банков кредит. Оферта 7311







