НОВ ПРОЕКТ! ДОКАЗАНА КОМПАНИЯ! ОТЛИЧНА ЛОКАЦИЯ!
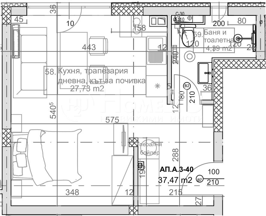
Home2U представя на Вашето внимание една чудесна възможност за инвестиция в нов проект на доказана строителна компания. Това едностайно жилище се състои от основно помещение с площ 28 кв.м. и правилни форми което го прави удобно за разполагане на кът за почивка, кухненска част или друго. Апартамента разполага и с общо санитарно помещение и просторно антре с предвидена ниша за пералня. Имота е разположен на четвърти етаж от общо седем с сградата.
В този проект са налични за избор и други 1-стайни, 2-стайни, 3-стайни, 4-стайни апартаменти, както и гаражи и паркоместа.
За повече информация и организиране на презентация се обадете СЕГА и цитирайте Имот 121222







