Translations in other languages:
All real estate ads published on imot.bg have been translated into English and published on the partner site
Получихте нова обява по филтър





Промяна на цена на наблюдавана обява


стара цена
нова цена
imot.bg – обяви за продажби и наеми на имоти
Сайт за имоти №1
Translations in other languages:
All real estate ads published on imot.bg have been translated into English and published on the partner site
ДОБАВИ ОБЯВА Редакция на обява
Начало Публикуване Търсене Нови сгради Агенции Новини Кредити + Още... Моят имот
Продава 1-СТАЕН
град Пловдив, Въстанически
Автогара Родопи
88 600 €
173 286.54 лв.

(1 030 €, 2 014.50 лв./m2)
Цената е с включено ДДС
Коригирана в 9:06 на 24 октомври, 2025 год.
Обявата е посетена 648 пъти.
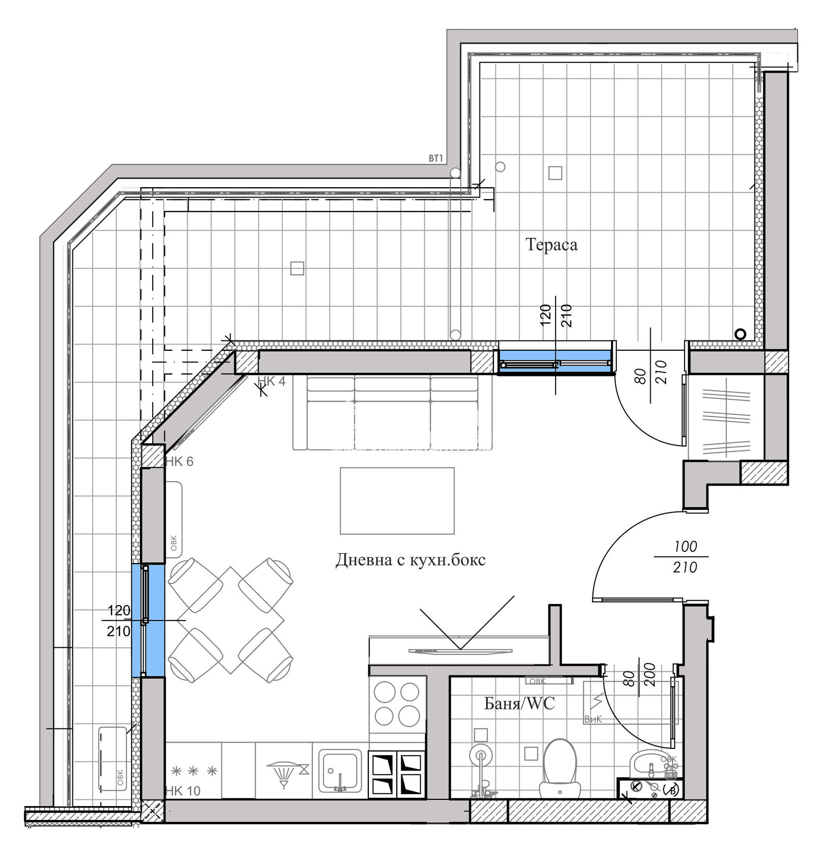
Площ:
86 m2
Строителство:
Тухла, Ще бъде въведен в експлоатация 2026 г.

Описание на имота:


Оферта 65121: Предлагаме ви възможността да си закупите жилище в МАЛКА И ЛУКСОЗНА СГРАДА тип фамилна къща в един от най- предпочитаните райони на квартала в близост до Автогара Родопи и Централната част на града !!! Жилището се състои от дневна с трапезария и кухненски бокс, баня с WC, една панорамна тераса и прилежащо избено помещение с площ от 4,70кв.м. Сградата се отличава със съвременна архитектура в район с отлични комуникации. Изпълнява се от реномирана Строителна Компания, която разполага с множество готови сгради, като може да ви покажем готови жилища, за да видите качеството на изпълнение /приложен е снимков материал от готова сграда/. Перфектна локация, на приятно и спокойно място в близост до парк, училища, детска градина и удобен транспорт - ОТЛИЧНА ИНВЕСТИЦИЯ !!! Апартаментите се издават според всички изисквания за съвременно строителство - блиндирана врата, 6-камерна дограма, МДФ-вътрешни врати. Луксозно завършени общите части, двойна хидро и топло изолация, италиански хидравличен асансьор, гранитено стълбище, алуминиев парапет. Свободни Партерни Гаражи !!! Възможност за разсрочено плащане в рамките на строителството или Закупуване чрез Банков Кредит!!!
ВИЖТЕ ОЩЕ ИЗГОДНИ ОФЕРТИ НА https://www.kondorimoti.com/ С ЕЖЕДНЕВНА АКТУАЛИЗАЦИЯ!
Виж всички обяви в kondor.bazar.bg или тук
Особености
Тухла
За контакт:
0897777032

Този имот се предлага само на частни лица
Брокер:
Кондор Имоти
0897777032
Още оферти от брокера: Продава | Дава под наем | Купува | Наема
Агенция:
КОНДОР - НЕДВИЖИМИ ИМОТИ
0897 777 032 , 0893 554 200;
КОНДОР - НЕДВИЖИМИ ИМОТИ logo
Медал за прослужено време
В imot.bg от 2004 г.
kondor.imot.bg
Адрес:
област Пловдив, гр. Пловдив, ул.Петко Д.Петков 23,ет.4 /до ТЦ Гранд/
http://www.kondorimoti.com
ИЗПРАТИ ЗАПИТВАНЕ
ИЗПРАТИ ЗАПИТВАНЕТО

Продава 1-СТАЕН
град Пловдив, Въстанически
Автогара Родопи
Обява: 1a172924026037563

88 600 €
173 286.54 лв.
(1 030 €, 2 014.50 лв./m2)

Цената е с включено ДДС
ЗАПАЗИ ОБЯВАТА

Местоположение: град Пловдив, Въстанически, Автогара Родопи

Виж още имоти от Пловдив или още Едностайни Апартаменти в Пловдив
Допълнителни данни за имотите в района и сравнение с други райони: Търсене в АРХИВ 2013 - 2025 г.











Добави/редактирай
вид имот и район
*Средните цени са определени чрез медиана стойност.
Още обяви в imot.bg
КОНТАКТИ | SMS КОДОВЕ | СТАТИСТИКА | ПОМОЩ | ОБЩИ УСЛОВИЯ | РЕКЛАМА | ТОП ОФЕРТА | Въпроси и предложения към imot.bg
Резон Медия | Имоти | Автомобили | Работа | Новини | Обяви | Преводи и легализация 2002-2025 ® Copyright imot.bg
© imot.bg ползва и препоръчва хостинг услугите на Bulinfo.net
Следвайте ни в: