БЕЗ КОМИСИОННА ОТ КУКУВАЧА!
Агенция Trust Broker Solutions предлага на Вашето внимание едностаен апартамент в ж.к. Стрелбище. Акт 14 към 03.2026 г. Акт 16 към 12.2026 г.
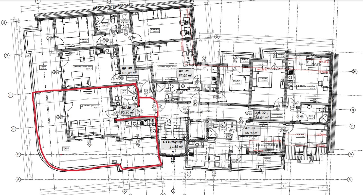
РАЗПРЕДЕЛЕНИЕ:
Апартамента се състои от коридор, хол с кухненски бокс, баня с тоалетна, голяма тераса.
ЛОКАЦИЯ:
Намира се в ж.к. Стрелбище, на улица Хайдушка гора.
АКЦЕНТИ:
✅ Отлична локация
✅ Отлично развит квартал.
ДОПЪЛНИТЕЛНА ИНФОРМАЦИЯ:
✅ Разрешение за ползване (Акт 16) от 12.2026г.
✅ Вид строителство: Тухла.
✅ Етаж: 6 от 6 .
✅ Площ: 67.5 м2
Агенция Trust Broker Solutions предлага напълно безплатно кредитни консултации. Работим с всички банки в страната, на преференциални условия. Кредитният ни отдел е регистриран в БНБ като независим банков консултант по ипотечно кредитиране.
За още оферти посетете сайта ни: tbsestates.bg или се обадете на 0878878386.
Виж всички обяви в tbsestates.bazar.bg или тук
        
       
         
         
             
            






