Пред акт 16
Без комисионна от купувача! Доказан инвеститор без компромис с качеството!
Асфалтов път!
Цена 108999 евро с ДДС
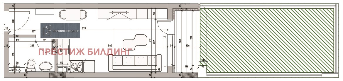
Студиото е с обща площ 38,45 кв.м, от които застроена площ 32,79 кв.м. Разположен е на партер от сграда с пет жилищни етажа.
Функционално разпределение на А 12: антре, дневна с кухненя и трапезария, баня с тоалетна и двор.
Изложение: север
Технически характеристики: строителството е на етап довършителни работи, като се използват cъвpeмeнни виcoĸoeнepгийнo eфeĸтивни мaтepиaли и тexнoлoгии, ĸoитo дa ocигypят мaĸcимaлeн ĸoмфopт и ĸaчecтвo нa живoт. - Апартаментите ще се издават по БДС -циментова замазка по подове, гипсова шпакловка по стени и тавани, мазилка по стени и тавани в санитарни възли, ОВ и ВиК инсталация до тапа, Ел инсталация -без монтирани ключове и контакти. Дограмата е Rehau Synego или Gealann 9000, 7 камерен профил с троен стъклопакет. Общите части ще бъдат с камък, парапетите със стъкло, а вратите Solid 55. Отопление: на газ. Фасадата на сградата ще е мазилка с декоративни елементи от алуминий и композитни декоративни елементи. Строителството е на етап довършителни работи . Акт 16 до края на 2025 г.
Етажност: сградата е на 5 жилищни етажа + магазини в партерния етаж + подземни паркоместа и гаражи. Местоположение: комуникативно, в близост до Бизнес парк София , Ринг мол , IKEA , Парадайз Център, супермаркети, Национална спортна академия, Зимен дворец на спорта, , детски ясли и градини, училища и висше учебни заведения, ресторанти и разнообразни търговски услуги. В комплексът се предлагат студиа, двустайни и тристайни жилища, подземни паркоместа и гаражи. За повече информация: 0883310777
тел.: 0889909079, e-mail: [email protected],
Виж всички обяви в prestigebuilding.bazar.bg или тук
        
       
         
         
         
         
         
             
             
             
             
            


