С АКТ 16!!! До Метростанция Дружба и спирки на градски транспорт, бърз достъп до центъра на града; 4 км. от летище София, в непосредствена близост до супермаркети, РУМ Дружба, аптеки, училище, детски градини.
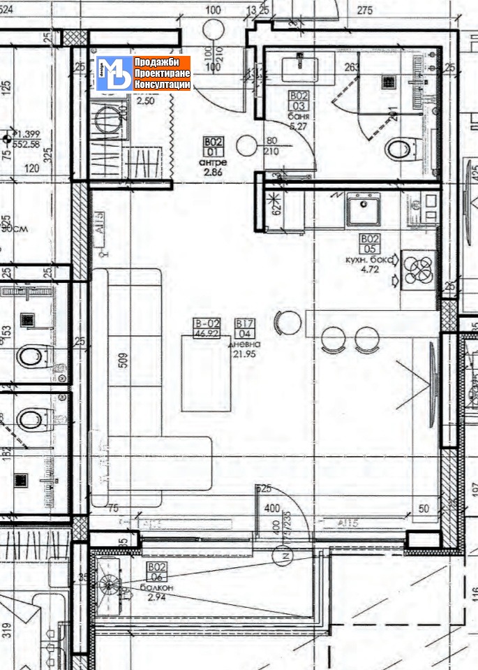
Апартамент В-07 е разположен на трети етаж, с източно изложение. Обща площ - 60,36 кв.м. (застроена площ 53,68 кв.м.), състои се от дневна с кухненски бокс 32,08 кв.м., баня 5,27 кв.м., антре -3 м2., склад 2,5 кв.м. и балкон 4 кв.м. Към имота има процент идеални части от собствеността на земята, върху която е построена сградата. Цената е без включен ДДС.
Обектът се състои от две 5-етажни сгради, с по два входа в самостоятелен парцел, с осигурено паркиране, озеленяване, осветление.
Изпълнено е висококачествено и енергоефективно строителство:
-Конструкция и стени - стоманобетонна, тухла Винербергер;
-Дограма - 'ТРОКАЛ'-7 камери PVC профил, трислоен стъклопакет;
-Отопление - ТЕЦ с изградена индивидуална разводка към всеки имот. Монтирани разводки за климатик във всички стаи;
-Асансьори - ORONA;
-Общи части - полиран камък, входни блиндирани шумоизолиращи врати, чип-достъп до сградата, видеонаблюдение, входни антрета в сградите - завършени по интериорен проект;
-Фасади - система на мазилки и изолации 10 см, стъклени парапети, каменни облицовки, обрамчване на прозорци;
-Озеленяване и фасадно осветление - по проект.
Опция за покупка на надземно паркомясто с цена 25 000 евро без ДДС.
Подробна информация за проекта и други предложения в сградите вижте - www.sirius-apartments.com
Без комисионни! Без индексация на цени след подписан договор! Оказваме пълно съдействие за одобрение и отпускане на кредит. 0876 277 866, 0888 813 777
НОВО!!! На всички наши настоящи и бъдещи клиенти, на които им предстои ремонт на имота, препоръчваме онлайн платформата funkcionalno.bg, незвисимо дали сами ще осъществят ремонта или това ще бъде възложено на специализирана фирма.







