Translations in other languages:
All real estate ads published on imot.bg have been translated into English and published on the partner site
Получихте нова обява по филтър





Промяна на цена на наблюдавана обява


стара цена
нова цена
imot.bg – обяви за продажби и наеми на имоти
Сайт за имоти №1
Начало Публикуване Търсене Нови сгради Агенции Новини Кредити + Още... Моят имот
Дава под Наем МАГАЗИН
град София, Банишора, бул. Сливница
952 €
1 861.95 лв.

(14 €, 27.38 лв./m2)
Цената е без ДДС
Публикувана в 10:46 на 2 октомври, 2025 год.
Обявата е посетена 20 пъти.
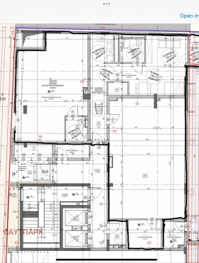
Площ:
68 m2
Етаж:
Партер от 8

Описание на имота:

Агенция САУТПАРК отдава търговско помещение със статут на магазин, с лице на ул. Димитър Петков в Кенар резидънс, в непосредствена близост до болница. Магазинът е с големи витрини, високи тавани, над 3 метра и отлична видимост. Довършителните работи ще бъдат извършени от наемодателя и за негова сметка на база изискванията на бъдещия наемател. Разпределението включва основна търговска площ и санитарен възел. Има възможност за наемане на склад с почти същата големина, в задната част на магазина. Локацията, добрата видимост и транспортни връзки, предполагат успешно развитие на всякакъв вид търговска дейност АПТЕКА, салон (фризьорски, козметичен и др.), услуги (застрахователни, сервизна дейност, куриерски услуги и др.), представителство на фирма, офис и други.
Виж всички обяви на агенцията в southpark.bazar.bg или тук.


За контакти:  0876066107
Агенция: САУТПАРК

http://southpark.imot.bg

Още оферти: продава | дава под наем | купува | наема

Адрес: област София, гр. София, бул.Витоша 152
Тел.: 0876 066 107
http://www.southpark.bg
Изпрати запитване:
 
Вашето съобщение (до 1000 символа):
Вашето име: Вашия мобилен телефон:

Вашия E-mail:  
Изпрати Е-mail
Съгласявам се с общите условия и политики за защита на личните данни

Дава под Наем МАГАЗИН
град София, Банишора
бул. Сливница
Обява: 2m175939116266531

952 €
1 861.95 лв.
(14 €, 27.38 лв./m2)

Цената е без ДДС
 

Местоположение: град София, Банишора, бул. Сливница

Допълнителни данни за имотите в района и сравнение с други райони: Търсене в АРХИВ 2013 - 2025 г.











Добави/редактирай
вид имот и район
*Средните цени са определени чрез медиана стойност.

КОНТАКТИ | SMS КОДОВЕ | СТАТИСТИКА | ПОМОЩ | ОБЩИ УСЛОВИЯ | РЕКЛАМА | ТОП ОФЕРТА | Въпроси и предложения към imot.bg
Резон Медия | Имоти | Автомобили | Работа | Новини | Обяви | Преводи и легализация 2002-2025 ® Copyright imot.bg
Следвайте ни в: