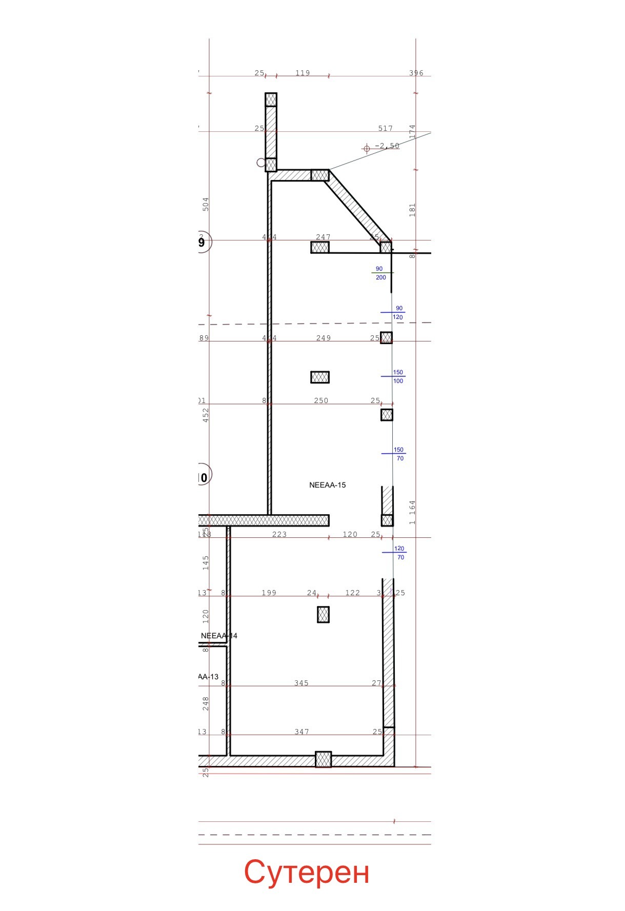
СОБСТВЕНИК, ДАВА ПОД НАЕМ ДЪЛГОСРОЧНО, търговско помещение, с лице на бул. Сан Стефано 82, с големи витрини, с втори вход, самостоятелни вентилации до покрива, трифазен ток, статут - за търговска дейност ., височина 3.20 м., санитарен възел на партерно ниво. (в близост до училище Васил Априлов) Общата площ е 116 кв.м. с общи части, от които 78 кв.м. на партер и 38 кв.м в сутерен. Сутерена е с прозорци и отделен външен вход към него, освен че е свързан и вътрешно със стълба към партерното ниво.
Подовата настилка е от висок клас износоустойчив ламиниран паркет и полиран гранитогрес.
Разпределения с точни размери за двете нива на помещението, можете да видите в приложените снимки.



