Разполагаме с пет ПРЕДСТАВИТЕЛЕНИ ОФИСА в сграда в центъра на гр. София - ПОД НАЕМ.
 
ОПИСАНИЕ:
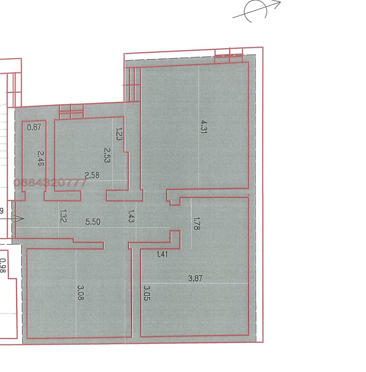
Офис етаж 1-ляво с площ 76 кв. м. на цена 1380.15 евро/месец без ДДС - кухня, тоалетна и 3 стаи с площ на общите части 16.01 кв. м.
Общо: 92.01 кв. м.
Такса управление 92 евро/месец без ДДС***
Офис етаж 2-ляво с площ 76 кв. м. на цена 1380.15 евро/месец без ДДС - кухня, тоалетна и 3 стаи с площ на общите части 16.01 кв. м.
Общо: 92.01 кв. м.
Такса управление 92 евро/месец без ДДС***
Офис Етаж 3-ляво с площ 76 кв. м. на цена 1288.14 евро/месец без ДДС - кухня, тоалетна и 3 стаи с площ на общите части 16.01 кв.м
Общо: 92.01 кв.м. 
Такса управление: 92 евро/месец без ДДС***
Офис Етаж 3- дясно площ 96кв.м на цена 1627,08 евро/месец без ДДС- кухня, тоалетна 3 стаи с площ на общи части 20,22кв.м
Общо: 116,22кв.м
Такса управление 100евро/месец без ДДС***
Офис Етаж 4-дясно с площ 82.50 кв.м. на цена 1372,42евро/месец без ДДС - кухня, тоалетна и 2 стаи с площ на общите части 15.53 кв.м
Общо: 98.03 кв.м 
Такса управление: 98 евро/месец без ДДС***
Офис Етаж 4-ляво с площ 78.40 кв.м. на цена 1255,52 евро/месец без ДДС - кухня, тоалетна и 3 стаи с площ на общите части 11.28 кв.м
Общо: 89.68 кв.м 
Такса управление: 90 евро/месец без ДДС***
За информация и огледи, моля звънете на 0885920241
        
        
      
    
        
        
        
        
        
        
        
        
        
        
        
        
        
            
            
            
            
            
            
            
            
            
            
            
            
            






