НПЗ Хаджи Димитър, ул. Резбарска 5, комплекс Балкан Стар
АКЦЕНТИ:
1. Офисни площи на 3-ти етаж в отлично състояние
2. Голямо количество паркоместа - до 7 - 15 бр.
3. Обявата е публикувана в район Център поради непосредствена близост и
възможността да бъде видяна от повече потенциални клиенти (1 км до Дондуков)
ОПИСАНИЕ НА СГРАДАТА:
Сградата, в която се намират офисите е построена през 2001г. Разположена е с лице на ул. Резбарска и Макгахан и разполага с лесен достъп. Представлява част от комплекс офисни сгради, шоуруми, складове със утвърдени ползватели и бизнес среда. Клиентите познават тази бизнес среда и лесно намират локацията.
ХАРАКТЕРИСТИКИ НА ОФИСИТЕ:
- Отдаваема площ: 550 м2
- Състояние: много добро, но е възможно да се констатира необходимост от леки поправки и освежавания.
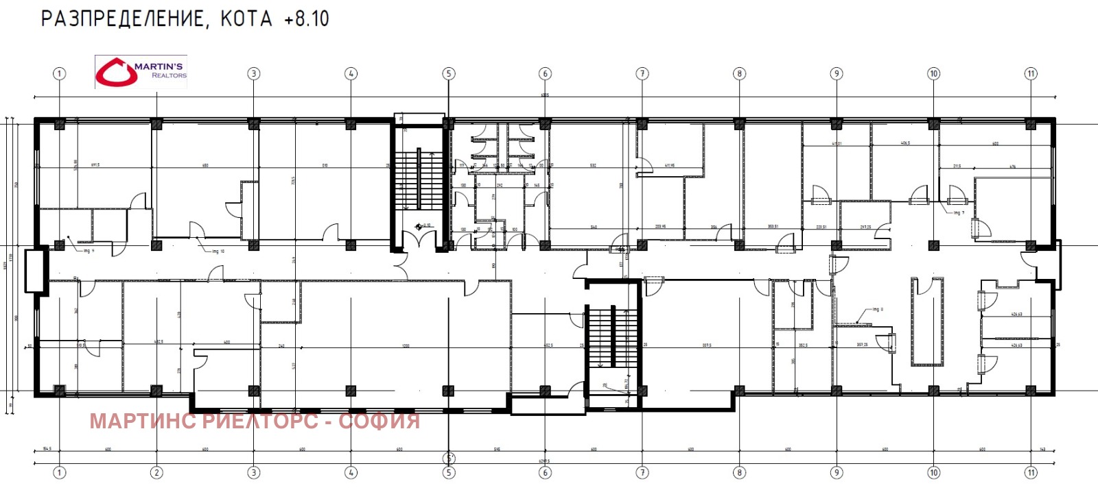
Разпределение: публикуван е чертеж с броя на помещенията и техните размери
Височина на помещенията: 3м, преди окачения таван
Отопление и вентилация (охлаждане): локално отопление на газ, охлаждане VRV система
Окабеляване - с кабел канали по стените и над окачения таван
Сигурност външна видеоохрана, контрол на достъпа към сградата и вътрешно на етажите, пожароизвестяване, място за собствена рецепция
Сервизни помещения: баня/WC за персонал мъже и жени поотделно, отделна кухня
Интернет: Към сградата е прокарано трасе с високоскоростен оптичен кабел
Паркиране: външно, с ограничен достъп 40 евро без ДДС / бр.
Такса поддръжка и управление: 1 евро без ДДС на м2 включва битов отпадък, сметоизвозване, снегопочистване, видеоохрана и управление на контрола на достъп
Други:
- Изискват се три (3) депозита;
- Има възможност за частична мебелировка
- Има възможност за наемане на допълнителни площи до 1100 м2 на същия етаж
Виж всички обяви в martinsrealtors.bazar.bg или тук







