Имота има лице на две улици. Около имота има изградена добра инфраструктура - улична, водопровод, ел. захранваща мрежа, ТЕЦ. В близост до имота са жилищни сгради, спирки на градски транспорт, хранителни магазини, детски градини и училища. Освен за жилищно строителство парцелът е подходящ също за изграждане на складове, помещения за тихо производство, автосервиз, помещения или съоръжения за спорт и други дейности.
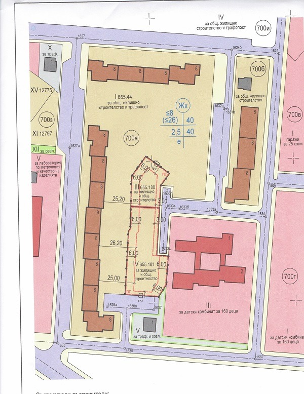
Параметри на застрояване съгласно влязъл в сила ПУП: КИНТ 2,5, плътност 40%, предназначен за обществено и/или жилищно строителство с височина до 17м. РЗП=3767,50 м при етажност 5+Г, под цялата площ могат да бъдат изградени подземни гаражи и/или складови помещения т.е. още 1507м2.
Изгодна инвестиция!
Възможно договаряне при интерес.
Виж всички обяви в asavia.bazar.bg или тук


