В близост до имота : Околовръстно шосе-западна дъга, бул Европа, Пътен възел Автомагистрала Европа-Ломско шосе Е-80, ЖП терминал гара Волуяк.
Локацията предлага бърз достъп до магистрали, основни пътни артерии и жп транспорт, което я прави стратегически удобна за различни видове производства и логистична дейност.
В района се изгражда Интермодален терминал Волуяк , част от Мултимодалната логистична платформа София-Запад, проект с финансиране пo Mexaнизмa зa cвъpзвaнe нa Eвpoпa 2021-2027 г, което ще доведе до много бързо развитие и концентрация на логистични и производствени бази
Основни характеристики на имота:
Общо РЗП: ~2950 м²
Парцел: ~5900 м²
Година на строителство: 2017 г.
Конструкция: метална рамкова с термопанели (100 мм) върху стоманобетонов фундамент
Височина на работните помещения: 4,00 5,90 м
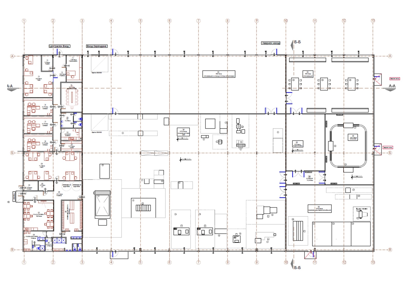
Разпределение:
Производствена част (~2448 м²) с обособени зони за различни производствени процеси, товарни входове и индустриални врати с подход за камиони
Административна част (~504 м²) с модерни офиси, заседателна зала, помещения за персонала, столова
Технически параметри:
Електрозахранване: собствен трафопост (400 kW)
Водоснабдяване: връзка с градски водопровод + собствен водоизточник за промишлени нужди
Отводняване: пречиствателна станция и изгребна яма
Климатизация: термопомпена система за отопление и охлаждане
Настилки:
Производствени помещения шлайфан бетон
Офисна част гранитогрес
Сигурност: видеонаблюдение, контрол на достъпа, пожароизвестителна система
Интернет и комуникации: изградена мрежова инфраструктура
ТИР достъп
17 паркоместа за автомобили
Подходящо за:
✅ Чисти производства: мебели, метални изделия, машиностроене, електроника, автомобилни компоненти, рекламни материали, фармацевтична фабрика, хранителни и текстилни производства
✅ Логистика и дистрибуция
✅ Сервизни и технологични дейности
Имотът предлага оптимални условия за развиване на производствена и складова дейност, съчетавайки съвременна сграда, функционално разпределение и отлична транспортна достъпност.
Възможна е продажба на имота в отделно дружество с цел оптимизация на разходите.
Виж всички обяви в temenuga.bazar.bg или тук


