Translations in other languages:
All real estate ads published on imot.bg have been translated into English and published on the partner site
Получихте нова обява по филтър





Промяна на цена на наблюдавана обява


стара цена
нова цена
imot.bg – обяви за продажби и наеми на имоти
Сайт за имоти №1
Translations in other languages:
All real estate ads published on imot.bg have been translated into English and published on the partner site
ДОБАВИ ОБЯВА Редакция на обява
Начало Публикуване Търсене Нови сгради Агенции Новини Кредити + Още... Моят имот
Продава ПРОМ. ПОМЕЩЕНИЕ
град Русе, Родина 1
1 350 000 €
2 640 370.50 лв.

(395 €, 772.55 лв./m2)
Цената е без ДДС
История на цената
Публикувана в 10:17 на 30 юли, 2025 год.
Обявата е посетена 248 пъти.
Площ:
3416 m2
Строителство:
Тухла, Въведен в експлоатация 1970 - 1979 г.

Описание на имота:


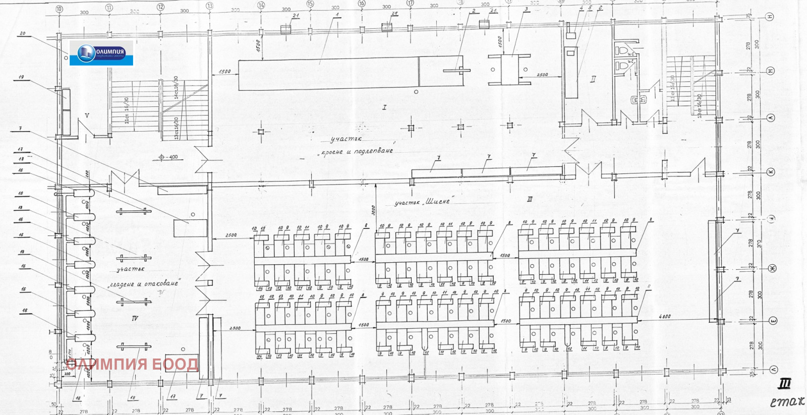
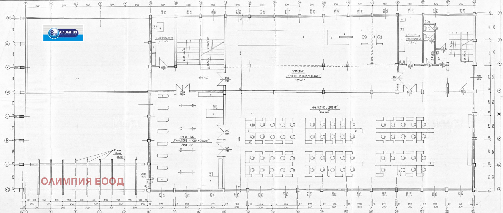
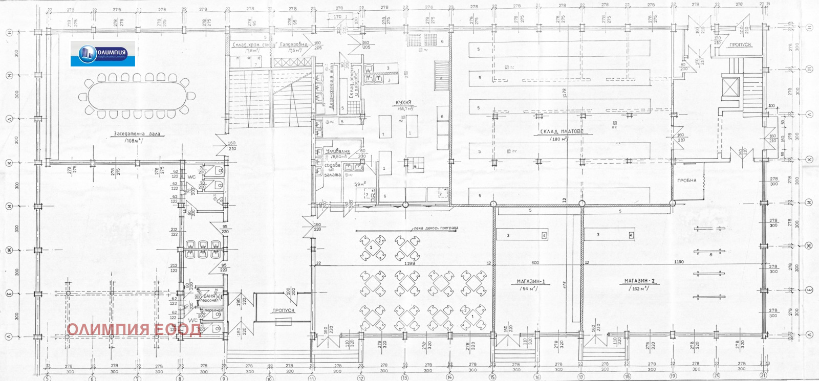
Обществено обслужваща сграда подходяща за административно - търговска, хотелска дейност или леки производства по бул. Липник, до бившата администрация на завод Петър Караминчев. На 4 нива, РЗП 3416 кв.м., 2 товарни асансьора, отстъпено право на строеж.
Виж всички обяви в olimpia2.bazar.bg или тук
Особености
Тухла
Асансьор
С паркинг
Контрол на достъпа
За контакт:
0898551111
Агенция:
ОЛИМПИЯ ЕООД
0898551111
ОЛИМПИЯ ЕООД logo
Медал за прослужено време
В imot.bg от 2004 г.
olimpia2.imot.bg
Адрес:
област Русе, гр. Русе, ул. Асен Златаров 20, ет. 1
ИЗПРАТИ ЗАПИТВАНЕ
ИЗПРАТИ ЗАПИТВАНЕТО

Продава ПРОМ. ПОМЕЩЕНИЕ
град Русе, Родина 1
Обява: 1p175385982811825

1 350 000 €
2 640 370.50 лв.
История на цената
(395 €, 772.55 лв./m2)

Цената е без ДДС
ЗАПАЗИ ОБЯВАТА

Местоположение: град Русе, Родина 1

Виж още имоти от Русе или още Пром. помещения в Русе
Допълнителни данни за имотите в района и сравнение с други райони: Търсене в АРХИВ 2013 - 2025 г.











Добави/редактирай
вид имот и район
*Средните цени са определени чрез медиана стойност.
Още обяви в imot.bg
КОНТАКТИ | SMS КОДОВЕ | СТАТИСТИКА | ПОМОЩ | ОБЩИ УСЛОВИЯ | РЕКЛАМА | ТОП ОФЕРТА | Въпроси и предложения към imot.bg
Резон Медия | Имоти | Автомобили | Работа | Новини | Обяви | Преводи и легализация 2002-2025 ® Copyright imot.bg
© imot.bg ползва и препоръчва хостинг услугите на Bulinfo.net
Следвайте ни в: