Translations in other languages:
All real estate ads published on imot.bg have been translated into English and published on the partner site
Получихте нова обява по филтър





Промяна на цена на наблюдавана обява


стара цена
нова цена
imot.bg – обяви за продажби и наеми на имоти
Сайт за имоти №1
Начало Публикуване Търсене Нови сгради Агенции Новини Кредити + Още... Моят имот
Продава ГАРАЖ
град София, Младост 4
59 900 €
117 154.22 лв.

(1 089 €, 2 129.90 лв./m2)
Не се начислява ДДС
Коригирана в 12:33 на 7 октомври, 2025 год.
Обявата е посетена 3 пъти.
Площ:
55 m2
Етаж:
ниво -1 от 9

Описание на имота:

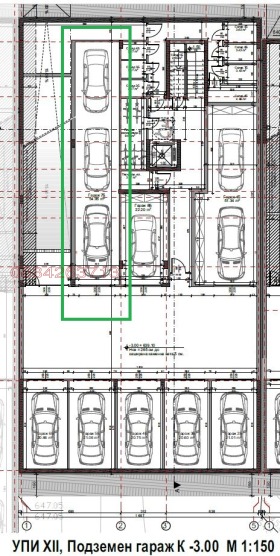
ДИРЕКТНО ОТ СОБСТВЕНИК ТРОЕН ГАРАЖ В ГРИЙН ПАРК, секция Б!
Предлагам за продажба просторен гараж - за три автомобила, разположен в новопостроената жилищна сграда Грийн Парк в кв. Младост 4, която ще бъде въведена в експлоатация 2026 г. Гаражът е на сутерена на сградата, кота -3,00 /минус три метра/, със застроена площ от 54,95 кв.м.
Разполагаме с апартаменти в същия вход, които може да се комбинират с гаража, но обявената цена е само за гаража.
Локацията на сградата е срещу Бизнес парк София, в непосредствена близост до Околовръстен път и бул. Александър Малинов .
Грийн парк е съвременна жилищна сграда, създадена с внимание към детайла, комфорта и качеството на живот. Състои се от партерно ниво с ателиета и гаражи, както и девет жилищни етажа. Проектът е на утвърдена строително-инвестиционна компания с дългогодишен опит и безупречна репутация. Всеки етап от строителството се изпълнява с прецизност, професионализъм и спазване на всички европейски стандарти за безопасност и каче... Виж повече
Особености:
• Автоматична врата
• Асансьор
• Контрол на достъпа
• Ток
• Осветен


За контакти:  0884263713
 
Изпрати запитване:
 
Вашето съобщение (до 1000 символа):
Вашето име: Вашия мобилен телефон:

Вашия E-mail:  
Изпрати Е-mail
Съгласявам се с общите условия и политики за защита на личните данни

Продава ГАРАЖ
град София, Младост 4
Обява: 1o175981234075382

59 900 €
117 154.22 лв.
(1 089 €, 2 129.90 лв./m2)

Не се начислява ДДС
 

Местоположение: град София, Младост 4

Допълнителни данни за имотите в района и сравнение с други райони: Търсене в АРХИВ 2013 - 2025 г.











Добави/редактирай
вид имот и район
*Средните цени са определени чрез медиана стойност.

Още обяви в imot.bg
КОНТАКТИ | SMS КОДОВЕ | СТАТИСТИКА | ПОМОЩ | ОБЩИ УСЛОВИЯ | РЕКЛАМА | ТОП ОФЕРТА | Въпроси и предложения към imot.bg
Резон Медия | Имоти | Автомобили | Работа | Новини | Обяви | Преводи и легализация 2002-2025 ® Copyright imot.bg
Следвайте ни в: