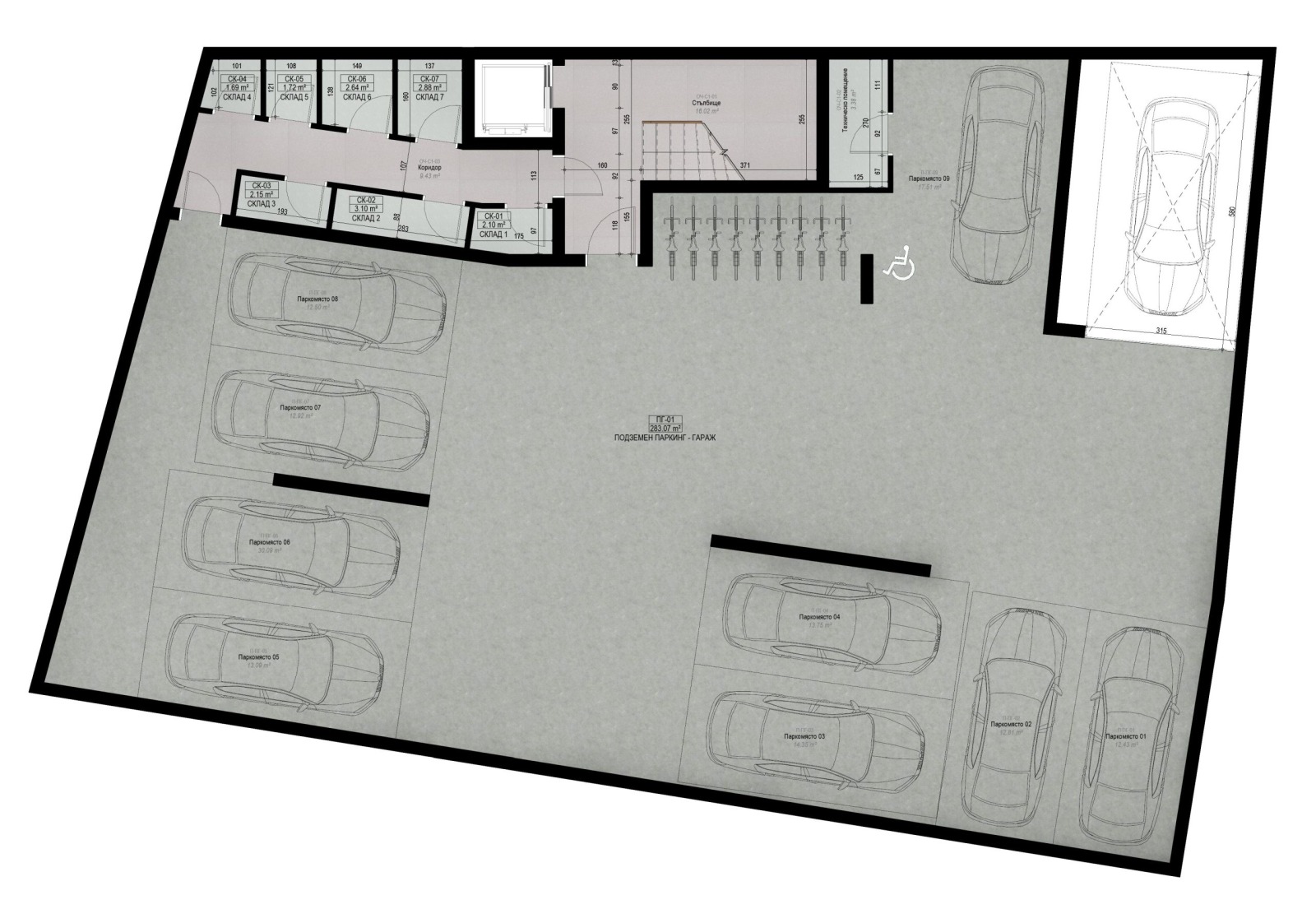
Строително-инвестиционна компания ТЕХ ИНВЕСТ представя паркомясто в сграда КА11, разположена на границата на кв. Лозенец и кв. Център. Достъпа до подземния паркинг е чрез автомобилен подемник.
Локация: кв. Лозенец/Център, 500м от хотел Хилтън, 600м от НДК, 100м от градинка Баня Лозенец
Въведена в експлоатация: Април 2025г
Свободни 4 подземни паркоместа, две от тях разполагат с монтирана зарядна станция за електромобил.
Паркиране: Свободни паркоместа за продажба в подземието на сградата
За повече информация: +359 879 660 656, [email protected]
Разгледайте и другите ни проекти на www.techinvest.bg
Виж всички обяви в techinvest.bazar.bg или тук
        
       
         
         
         
         
         
         
         
             
             
             
             
             
             
            
