🏡 Твоят спокоен дом край Варна
Къщата в Добрева чешма е идеалното място, ако търсиш тишина, чист въздух и гледка, без да се отказваш от близостта до града. Ще бъде завършена с врати, ламинат и плочки.
✨ Основни акценти:
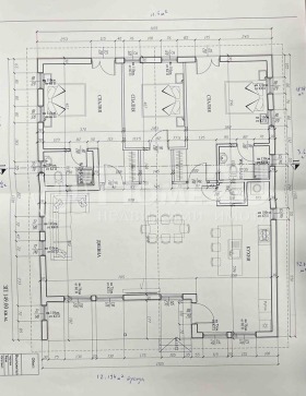
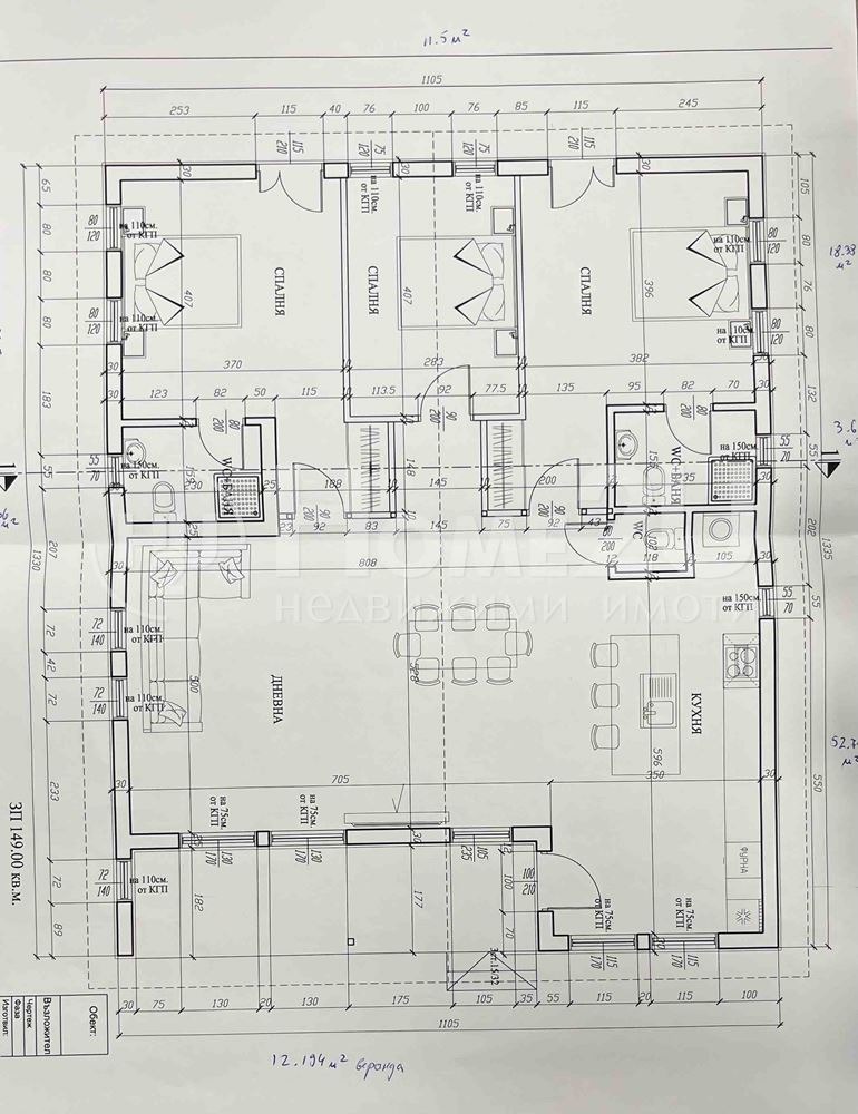
- Парцел 584 кв.м, къща 149 кв.м РЗП
- Просторна дневна 52 кв.м с гледка и място за кухненски остров
- Две спални по 19 кв.м всяка със собствена баня и ниша за гардероб
- Трета спалня 12 кв.м подходяща за гостна или кабинет
- Веранда отпред и достъп към задно дворче от всички спални
- Сервизно помещение и отделна тоалетна
🏗️ Качество и комфорт:
- Метална конструкция с облечени в бетон външни колони
- Бетонна основа и колони
- Тухли Wienerberger, 10 см каменна вата, метален сайдинг
- Покрив със сандвич панели, каменна вата и въздушен джоб, дограма Rehau
- Ще има бетонирана пътека с подход за коли (включена в цената)
🌿 Спокойствие, природа и уют всичко, което търсиш за новото начало.
📞 Обади се и запази оглед
Код на обявата: 138726
Виж всички обяви в home2uvarna.bazar.bg или тук



