ОТ СОБСТВЕНИК
Самостоятелна къща с 360 гледка в кв. Драгалевци | 538.80 кв.м РЗП | Двор 1101 кв.м
Ново строителство (края на 2026 г.) самостоятелна къща с панорамна 360 гледка към Витоша, Ботаническата градина и София, разположена в престижния кв. Драгалевци.
Площ: 538.80 кв.м
Двор: 1101 кв.м с ландшафтен дизайн
Конструкция: Тухла Wienerberger
Дограма: алуминиева, троен стъклопакет ETEM
Отопление: термопомпа Daikin, газово котле, подово отопление, конвектори
Гараж: подземен, за 3 автомобила + фитнес със сауна
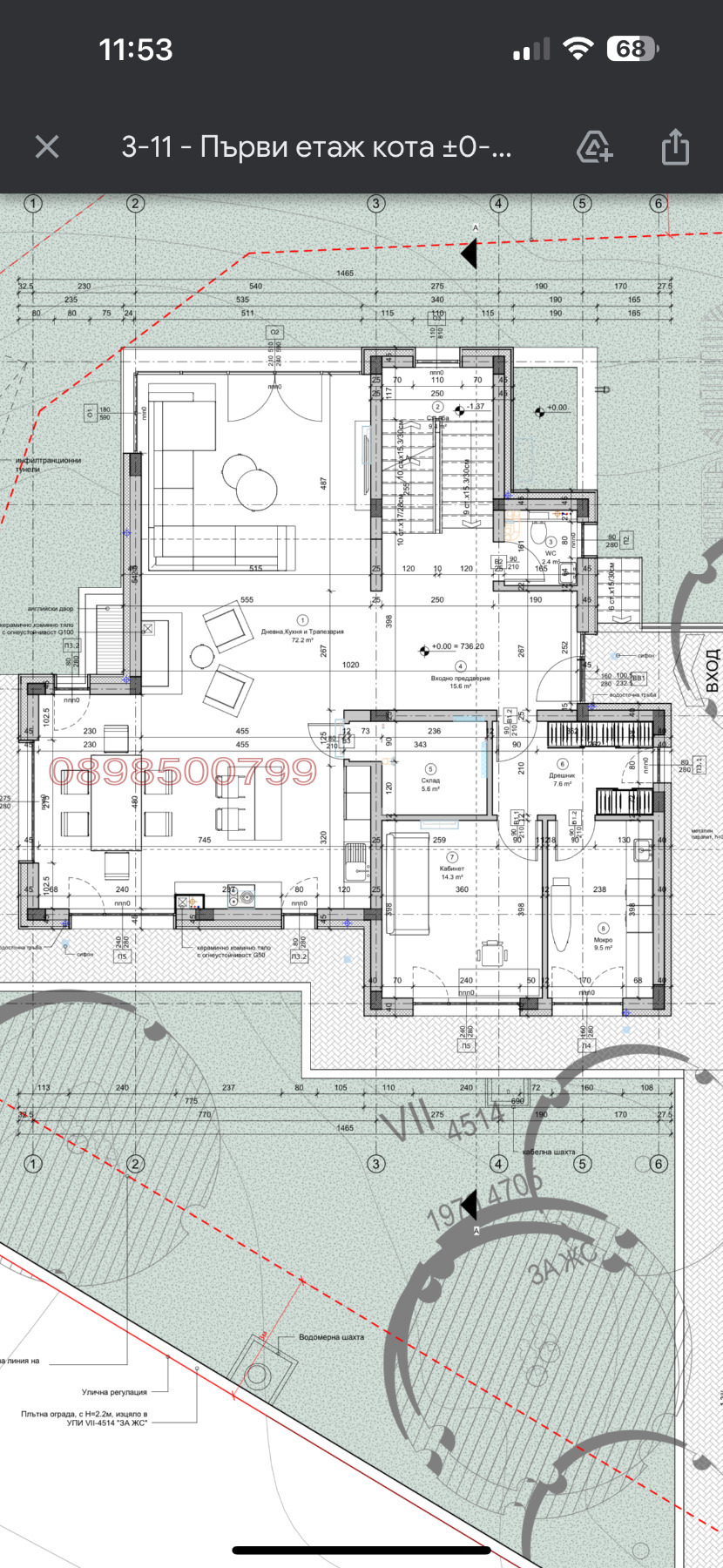
? Разпределение:
Партер: хол с камина, кухня + склад, стая за гости/офис, тоалетна за гости, дрешник, перално
Етаж 2: родителска спалня с баня, 2 детски стаи с бани, горен хол/офис
Панорамен покрив с ток, вода и възможност за кухня, бар или басейн
Подземно ниво: гараж, баня, котелно, склад, фитнес, сауна
? Алуминиева входна врата, външна мазилка с врачански камък.
? Газ Да | Южно изложение | Тихо място с бърз достъп до града.
? Имот без аналог стил, простор и гледка в сърцето на Драгалевци!







