Проекта включва две еднотипни, еднофамилни къщи, всяка с обща разгъната площ (РЗП) от 313.5 кв. м. Всяка къща е проектирана изключително функционално с правилна форма и впечатлява със своята съвременна визия и архитектура. Състои се от три нива едно подземно и две надземни.
На първо ниво са разположени просторна всекидневна с изобилие от естествена светлина, голяма кухня с трапезария, спалня за гости (или кабинет), удобно складово помещение (килер), баня с тоалетна и входно антре.
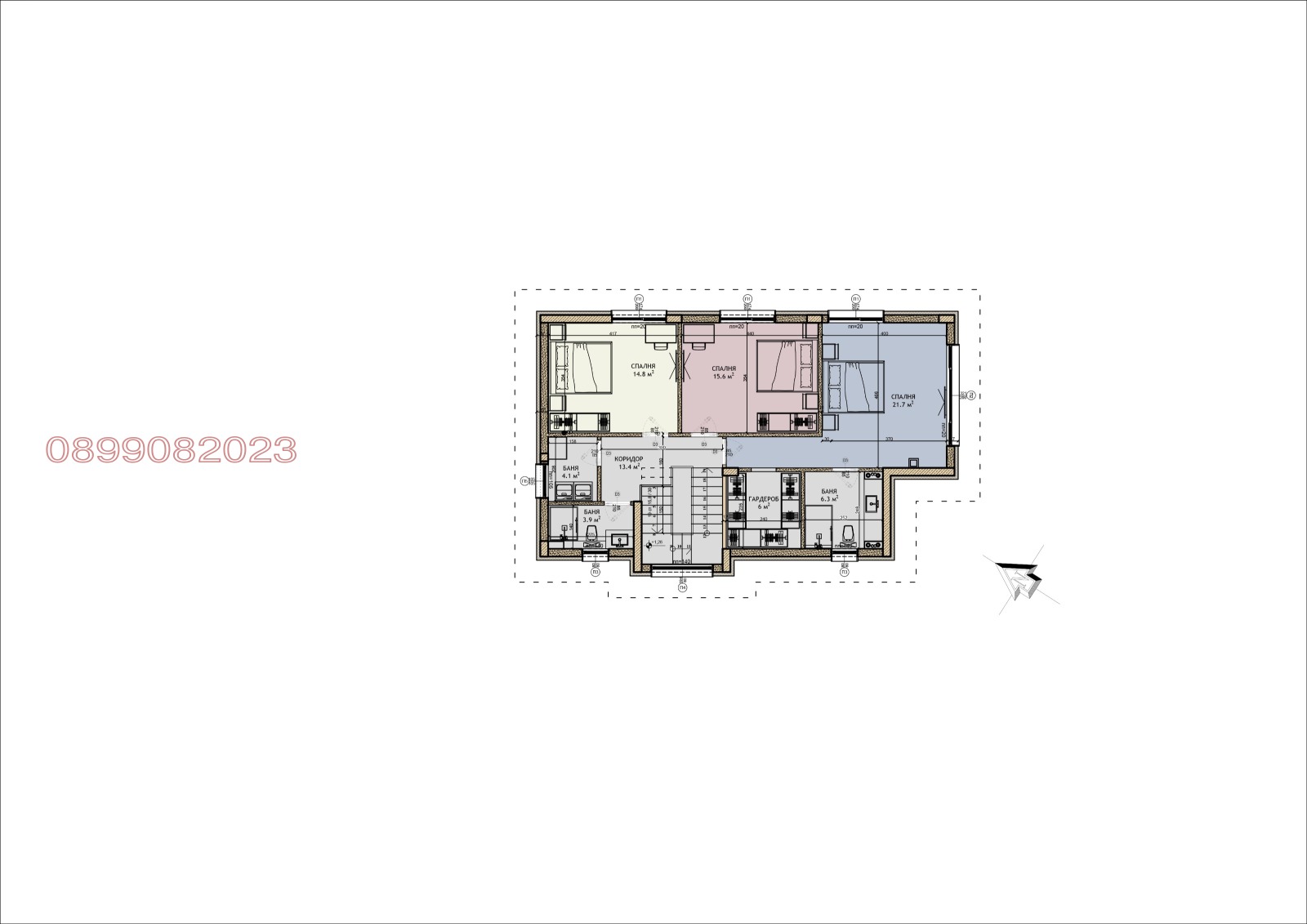
На второ ниво са разположени родителска спалня със самостоятелна баня и дрешник, други две спални, баня, мокро помещение и коридор.
В подземното ниво са разположени голям гараж за три автомобила, с две технически помещения и стълбище с топла вътрешна връзка
Къщите ще изпълнят всички изисквания за клас нискоенергийни сгради , с външна изолация и висок клас алуминиева дограма и троен стъклопакет с нискоемисионно стъкло, входна и гаражна врата.
Отоплението е проектирано да се осъществява чрез термопомпа със система за подово отопление и енергоспестяващи конвектори за подпомагане на отоплението през студените месеци и за охлаждане през летния период. Къщата ще бъде издадена с изградена тръбна и кабелна инсталация, а новият собственик ще може да избере и постави уредите.
Покривът на всяка къща е многоскатен, с малки наклони и подпокривно пространство.
Всяка къща ще разполага със собствена пречиствателна станция, водопроводна инсталация, електро- и слаботокова инсталации. Подовете ще са с положена замазка, а стените и таваните с мазилка.
Фасадното оформление на къщата ще бъде завършено с окачена фасада от HPL плоскости, Laminam каменна облицовка и стандартна топлоизолационна система с висок клас покриваща мазилка.
Дворното пространство ще бъде озеленено по проект с градинско осветление и подходящи подходи и пътеки за движение. Имотът ще бъде ограден с ажурна ограда, която заедно с необходимите парапети ще отговарят на архитектурния стил и визия на целия проект.



