Имотът има следното разпределение - на първия етаж има предверие хол и спалня, а на - втория етаж има две спални и предверие.
Точно до къщата са лятна кухня, баня с тоалетна и мокро помещение.
Къщата се намира в просторен двор с големина от 1319 кв, като в него има и двоен гараж с канал за коли.! Локацията позволява спокойствие и тишина, но близостта до главните пътни артерии позволява бързо предвижване до големите градове, магистралата и Родопите! Селото се намира на 30 мин от Пловдив и на 20 мин от Асеновград
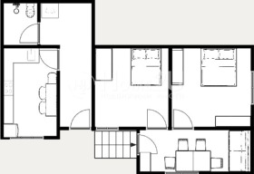
За ваше улеснение прилагаме схема с разпределението на имота. Не пропускайте тази невероятна възможност! Обадете се сега и цитирайте следния код: 114203
Виж всички обяви в home2u5.bazar.bg или тук



