Ексклузивно представяме за продажба нова къща-близнак с модерна визия, част от четири къщи, разположени в общ парцел в кв. 'Крайморие', на 450 метра от плажа.
В процес на строителство. Очакван Акт 16 - юли 2026 г.
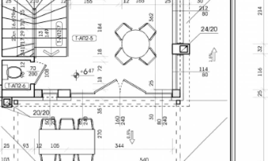
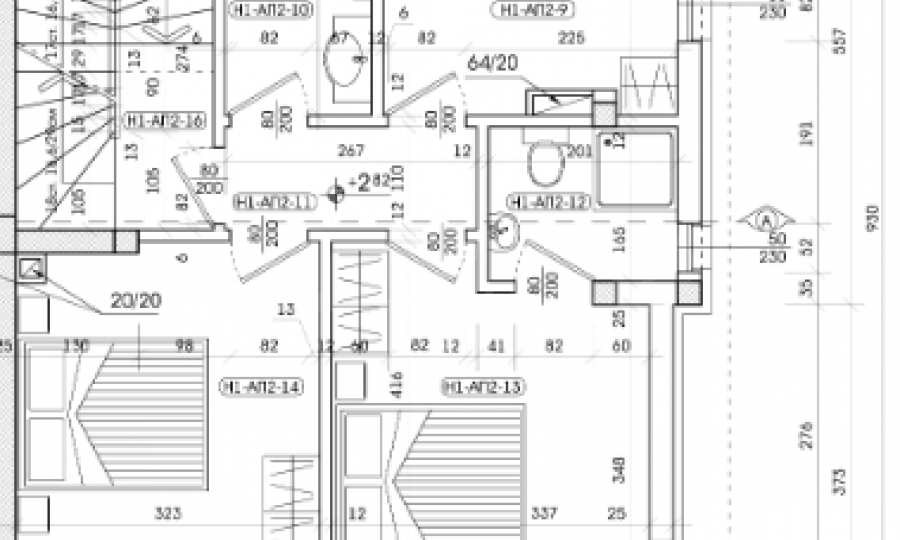
Имотът е с РЗП 196,51 кв.м със собствен двор с площ от 208 кв.м и две паркоместа.
Къщата е на три нива с вътрешно стълбище и две просторни тераси - тип веранда, които не влизат с квадратура в посоченото РЗП.
Разпределение:
партер: просторен хол с кухня, санитарен възел, склад, веранда;
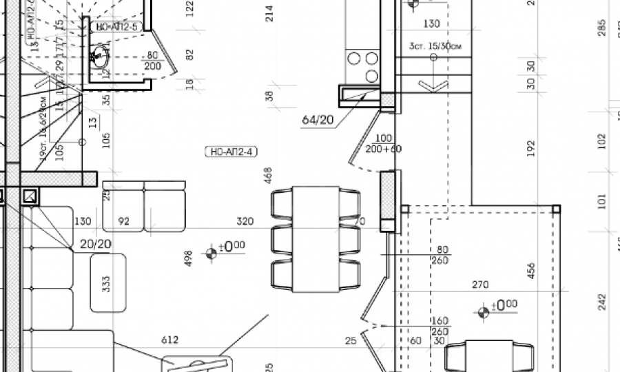
първи етаж: три спални, две бани с тоалет;
втори етаж: кабинет, кухня, допълнителна спалня, санитарен възел, открита веранда.От вилата се открива прекрасна панорама към морския залив.
Издава се в степен на завършеност по БДС:
тухли Porotherm, вътрешна вароциментова мазилка Baumit;
фасадна топлоизолационна система Baumit с 12см EPS;
облицовка на партера с плочи от естествен камък травертин силвър глиц;
немска ПВЦ дограма от най-висок клас;
входна врата HORMANN;
заложена инсталация зa охлаждане и отопление с термопомпа.Локация
Близо до главната пътна артерия свързваща квартала с центъра на Бургас. На пешеходно разстояние от плажа, хранителни магазини, ресторант, църква, спирка на градския транспорт. В район с обособена инфраструктура и непосредствено до предвидената за общински парк територия.
Предвиден е гъвкав разплащателен план с първоначална вноска от 10% при подписване на предварителен договор.
Цената е без вкл.ДДС.
Очакваме Вашето запитване
Ако желаете да организирате оглед на имот, който Ви интересува, или да посетите някой от нашите офиси, моля свържете се с нас. За да уговорите ден и час за среща или оглед, можете да се обадите на посочения в обявата телефон или да изпратите запитване чрез електронната поща. Нашият консултант ще Ви ...
Цената на имота е 275 000 евро / 537 853.25 лв. без ДДС или 330 000 евро / 645 423.90 лв. с ДДС. Данъчен кредит може да се ползва при определени условия.
За повече информация свържете се с нас и цитирайте референтния номер на имота. Моля, кажете, че сте видeли обявата в този сайт.
Референтен номер: LXH-131337
Тел: 0884 172 932, 056 702 566
Отговорен брокер:Теодора Иванова
Виж всички обяви в superimotiburgas.bazar.bg или тук



